Exhibit 10.1
LEASE AGREEMENT
CIP II/AR BRIDGEWATER HOLDINGS LLC
(LANDLORD)
to
Matinas BIOPHARMA HOLDINGS, INC.
(TENANT)
Effective Date: December 15, 2016
Table of Contents
| LEASE AGREEMENT | 1 | |
| 1. | DEMISE. | 1 |
| 2. | TERM. | 5 |
| 3. | RENT | 7 |
| 4. | USE OF PREMISES. | 8 |
| 5. | COMMON EXPENSE RENT AND REAL PROPERTY TAXES. | 9 |
| 6. | BUILDING SERVICES AND UTILITIES. | 13 |
| 7. | MAINTENANCE AND REPAIRS. | 14 |
| 8. | INSURANCE AND INDEMNIFICATION. | 15 |
| 9. | LANDLORD'S RIGHT TO PERFORM TENANT'S COVENANTS. | 18 |
| 10. | CONDEMNATION | 19 |
| 11. | QUIET ENJOYMENT | 19 |
| 12. | DAMAGE OR DESTRUCTION. | 20 |
| 13. | SUBORDINATION | 21 |
| 14. | SURRENDER OF PREMISES. | 22 |
| 15. | DEFAULT BY TENANT. | 22 |
| 16. | TENANT'S PROPERTY. | 24 |
| 17. | HOLDING OVER. | 24 |
| 18. | SECURITY DEPOSIT | 25 |
| 19. | FORCE MAJEURE | 27 |
| 20. | INTENTIONALLY DELETED | 28 |
| 21. | ESTOPPEL CERTIFICATES | 28 |
| 22. | ALTERATIONS OR IMPROVEMENTS BY TENANT | 28 |
| 23. | ACCESS TO PREMISES | 30 |
| 24. | PARKING | 30 |
| 25. | PARTIAL INVALIDITY | 30 |
| 26. | LEASE BINDING UPON ASSIGNEES. | 30 |
| 27. | LIMITATION OF LANDLORD'S LIABILITY. | 31 |
| 28. | WAIVER.. | 31 |
| - i - |
| 29. | ASSIGNMENT AND SUBLETTING.. | 31 |
| 30. | ENTIRE AGREEMENT AND MODIFICATIONS. | 38 |
| 31. | BROKER'S COMMISSION. | 38 |
| 32. | NOTICES. | 39 |
| 33. | RECORDING. | 39 |
| 34. | PERSON. | 39 |
| 35. | HEADINGS AND INTERPRETATION | 39 |
| 36. | MISCELLANEOUS, COUNTERPARTS | 39 |
| 37. | SURVIVAL OF OBLIGATIONS. | 39 |
| 38. | COMPLIANCE WITH LAWS AND RULES AND REGULATIONS. | 40 |
| 39. | ATTORNEYS’ FEES AND COSTS | 44 |
| 40. | WAIVER OF TRIAL BY JURY. | 45 |
| 41. | SEC FILING. | 45 |
| 42. | SIGNAGE. | 45 |
| 43. | INITIAL TENANT IMPROVEMENTS. | 45 |
| 44. | CHANGES TO PROJECT; EASEMENTS | 46 |
| 45. | INTENIONALLY DELETED | 46 |
| 46. | FOOD SERVICE AND FITNESS CENTER. | 46 |
| 47. | CONDOMINIUM | 47 |
| 48. | FINANCIAL STATEMENTS | 48 |
| 49. | RELOCATION OF TENANT | 48 |
| - ii - |
exhibits
| EXHIBIT A | LAND |
| EXHIBIT B | EXCLUSION AREA |
| EXHIBIT C | PREMISES |
| EXHIBIT D | INTENTIONALLY DELETED |
| EXHIBIT E | RETAINED FFE |
| EXHIBIT F | BILL OF SALE |
| EXHIBIT G | COMMENCEMENT DATE AGREEMENT |
| EXHIBIT H | REAL PROPERTY TAX CALCULATION METHODOLOGY |
| EXHIBIT I | INTENTIONALLY DELETED |
| EXHIBIT J | RULES AND REGULATIONS |
| EXHIBIT K | INTENTIONALLY DELETED |
| EXHIBIT L | INTENTIONALLY DELETED |
| EXHIBIT M | WORK LETTER |
| EXHIBIT N | PROJECT CAMPUS |
| EXHIBIT O | PROHIBITED USES |
| - iii - |
LEASE AGREEMENT
THIS LEASE, made and entered into this 15th day of December 2016, (the “Effective Date”) by and between CIP II/AR BRIDGEWATER HOLDINGS LLC, a Delaware limited liability company, having an office at c/o Advance Realty Development, 1041 U.S. Highway 202/206, Bridgewater, NJ 08807 (the "Landlord"), and MATINAS BIOPHARMA HOLDINGS, INC., a Delaware corporation, having an office at 1545 U.S. Highway 206, Suite 302, Bedminster, New Jersey 07921, (the "Tenant").
Background
A. Landlord is the owner in fee simple of a certain tract of land more particularly described on Exhibit “A” attached hereto (the "Land") situated in the Township of Bridgewater, County of Somerset and State of New Jersey, which is designated on the official tax map for the Township of Bridgewater as Block 483, Lots 17, 18 and 19 (the “Tax Lots”).
B. The Land (excluding the land and buildings shown within the Exclusion Area as shown on Exhibit “B”) is improved with various multi-story buildings dedicated to various uses, including research and development, general offices, and other improvements and structures supporting those uses within the campus which is referred to as the Research and Development project commonly known as the New Jersey Center of Excellence at Bridgewater (the “Project”).
C. Landlord is willing to lease a certain portion of the building known as 1025 U.S. Highway 202/206 Bridgewater, New Jersey also known as Building L (the “Building”) within the Project to Tenant and Tenant is willing to lease a certain portion of the Building within the Project from Landlord for the purposes and on the terms and conditions set forth in this Lease.
Agreement
In consideration of the mutual covenants and agreements set forth in this Lease, Landlord and Tenant, intending to be legally bound hereby, do hereby covenant and agree as follows:
1. DEMISE. (a) Landlord does hereby lease to Tenant, and Tenant does hereby rent from Landlord, upon and subject to the terms and conditions, covenants and agreements set forth in this Lease, the premises consisting of the entire Third Floor of the Building, as shown on Exhibit “C” which shall be deemed to be 14,336 rentable square feet (the "Premises"), which amount of rentable square feet set forth above shall be definitive for all purposes of this Lease. The lease of the Premises includes a non-exclusive right to use any pedestrian easements and/or vehicular easements that may exist from time to time for the benefit of tenants of the Project over any portion of the Land, together with all Common Areas. The term “Common Areas” is defined as all areas outside the Premises and within the exterior boundary lines of the Project which are designated by Landlord from time to time for the general non-exclusive use of Landlord, Tenant, and other tenants of the Project and their respective employees, suppliers, customers, and invitees, including, but not limited to access roadways, sidewalks, landscaping and planted areas and parking areas located at the Project. Landlord shall have the exclusive control and management of the Common Areas.
| - 1 - |
(i) Following the execution and delivery of this Lease by Landlord and Tenant, and Landlord’s obtaining all required building, construction and any other permits, approvals or consents required to comply with all applicable Laws, Landlord shall perform, at Tenant’s sole cost and expense but subject to the application of the Construction Credit (as hereafter defined) the Initial Tenant Improvements described as the Initial Tenant Improvements Work in Exhibit “M” attached hereto as part of the preparation of the Premises for Tenant’s occupancy.
(ii) Landlord shall advise Tenant, in writing, at least two (2) days prior to the anticipated date of Substantial Completion (hereinafter defined) of the Initial Tenant Improvements Work. Within two (2) days after Tenant’s receipt of Landlord’s notice of Substantial Completion (hereinafter defined) of the Initial Tenant Improvements Work, Tenant shall be granted an opportunity to walk-through the Premises, with a representative of Landlord, in order to verify Substantial Completion (hereinafter defined) of the Initial Tenant Improvements Work. Tenant shall provide Landlord written notice of any defects or incomplete work within five (5) Business Days following the walk-through. For purposes of this Lease the terms “Substantial Completion” or “Substantially Complete” when referring to the Initial Tenant Improvements Work, shall mean (x) that such work has been completed in accordance with (i) the provisions of this Lease applicable thereto, (ii) the plans and specifications for such work, and (iii) all applicable Laws, except for minor details of construction, decoration and mechanical adjustments, if any, the non-completion of which does not materially interfere with the performance of the Initial Tenant Improvements, or which, in accordance with good construction practice, should be completed after the completion of the Initial Tenant Improvements, and (y) Landlord delivers the Premises to Tenant leak-free, free of any Hazardous Materials (as hereinafter defined), with all systems serving the Premises (including, but not limited to, mechanical, electrical, HVAC, plumbing, and life safety) in good working order, and (z) Landlord has obtained a temporary or permanent certificate of occupancy from the applicable local governing authority (provided that if Landlord procures a temporary certificate of occupancy, Landlord shall thereafter procure a permanent certificate of occupancy), if required by Law. It is agreed that Tenant and Landlord shall promptly review any defects or incomplete work that are described in the written notice given by Tenant to Landlord and based upon such review, Landlord and Tenant shall prepare a list setting forth those items of the Initial Tenant Improvements Work which are not Substantially Completed (these items agreed to by Landlord and Tenant are hereinafter collectively referred to as “Punchlist Items”). Landlord agrees to cause such Punchlist Items to be completed within thirty (30) days after the date on which the parties have agreed upon the Punchlist Items; provided, however, if any Punchlist Items cannot be reasonably completed within the applicable thirty (30) period for any reason, including, without limitation, for any Force Majeure Delay or Tenant Delay, then Landlord shall have such longer period of time as shall be reasonably necessary to complete such Punchlist Items so long as Landlord is prosecuting such work with due diligence.
| - 2 - |
(iii) Notwithstanding anything to the contrary contained herein, Tenant shall be responsible for any additional reasonable out of pocket costs and expenses incurred by Landlord because of any interference or delay on Tenant’s or Tenant’s Agents part which prevents Landlord from Substantially Completing all or any portion of the Initial Tenant Improvements Work by March 15, 2017 (the “Estimated Commencement Date”) including, without limitation any interference or delay which is caused by (a) the failure of any of them to cooperate with Landlord or Landlord’s Contractor, (b) the failure to provide clarifications or additional information requested by Landlord regarding the Final Plan within the applicable time periods, (c) any change order requested by Tenant in which Landlord has identified in the change order will result in a delay in achieving Substantial Completion of the Initial Tenant Improvements Work, and (d) the failure of Tenant to remove all Retained FF&E from the Premises, provided, in each instance Landlord has given Tenant notice of such delay within two (2) Business Days of the date Landlord becomes aware of the occurrence of same (each a “Tenant Delay”).
(iv) Landlord represents and warrants that the Initial Tenant Improvements shall be free from defects in design, workmanship and materials for a period of one (1) year from the Commencement Date and Landlord agrees to make, at its sole cost and expense, all repairs and replacements required to remedy such defects promptly after receiving notice. Landlord agrees to repair and correct (as soon as reasonably practicable) any work or materials included in the Initial Tenant Improvements that prove defective as a result of faulty materials, equipment or workmanship and that appear within one (1) year after the Commencement Date (unless such work or materials are subject to a specific warranty period set forth in, or incorporated by reference in, the Final Plans, in which event such specific warranty period shall control), provided that Tenant shall have given written notice thereof to Landlord within twelve (12) months following the Commencement Date. Notwithstanding the foregoing, Landlord shall not be responsible to repair or correct any defective work or materials that prove defective as a result of any of improper use by Tenant or any of its employees, agents, invitees, licensees, subtenants, customers, clients or guests.
(b) Tenant shall have the rights and obligations set forth in this Section 1(b) with respect to those items of tangible personal property located in the Building on the Effective Date (collectively, the “Retained FFE”) listed on Exhibit “E” attached hereto and incorporated by reference herein. Landlord shall retain the ownership of the Retained FFE during the Term, except as otherwise expressly provided in this Section 1 (b). During the Term, Tenant shall have the sole right to possession and a license and use of the Retained FFE. If Tenant desires to remove, dispose of, replace, or modify any lab benches, ventilation hoods or equipment listed on Exhibit “E” as Retained FFE during the Term, Tenant first shall notify Landlord which items of Retained FFE Tenant desires to remove, dispose of, or replace, as the case may be. Within twenty-one (21) days after Landlord’s receipt of Tenant’s notice, Landlord shall (i) have the right to remove any or all of the Retained FFE items described in the Tenant’s notice from the Premises at Landlord’s sole cost and expense, or (ii) consent to Tenant’s desired removal, disposition or replacement of any or all of the Retained FFE listed in Tenant’s notice, which consent not to be unreasonably withheld, conditioned or delayed.
| - 3 - |
(i) Notwithstanding anything to the contrary contained herein, so long as no Event of Default exists as of the ninth (9th) anniversary of the Rent Commencement Date, Landlord shall transfer ownership of the Retained FFE to Tenant by way of executing and delivering a quit-claim bill of sale, in the form attached hereto as “Exhibit “F”. If an Event of Default exists as of the ninth (9th) anniversary of the Rent Commencement Date, Landlord shall retain ownership of the Retained FFE for the Term, and shall not transfer ownership of same the Retained FFE to Tenant, until the Event of Default is cured.
(ii) In connection with said transfer, Landlord shall retain a duly perfected first priority purchase money or other security interest in the Retained FFE to secure Tenant’s continued performance of its obligations under this Lease. The security interest shall be extinguished by Landlord upon the expiration of the initial Term of the Lease or the earlier date of Tenant removal, disposal, or replacement with Landlord’s consent (each, a “Removal”) of any such items by Tenant so long as there is no Event of Default at such time and so long as there is no default under this Lease (that is not cured within the applicable cure period, if any). Tenant shall promptly repair any damage caused to the Premises or Building by the removal of any such Retained FFE, such repairs to be reasonably approved by Landlord.
(iii) Notwithstanding the foregoing, however, if the Removal of any Retained FFE will adversely affect the structure or systems in or of the Building in Landlord’s reasonable judgment, then unless Tenant agrees promptly to repair any damage caused by such Removal to Landlord’s reasonable satisfaction, Landlord shall have the right to prevent such Removal in Landlord’s sole discretion. Tenant’s rights to the Retained FFE are appurtenant to this Lease and Tenant may only transfer, assign, or otherwise convey said rights together with a transfer, assignment, sublease or conveyance of this Lease as otherwise provided in this Lease.
| - 4 - |
2. TERM. (a) The term of this Lease (the “Term”) is ten (10) years and three (3) months. The Term shall begin on the date that Landlord Substantially Completes the Initial Tenant Improvements Work (the “Commencement Date”) and shall end on the last day of the month in which Tenth (10th) year anniversary of the Rent Commencement Date occurs, or such earlier date upon which the Term may expire or be terminated pursuant to any of the conditions of this Lease or pursuant to law (the “Expiration Date”). Landlord and Tenant desire that the Landlord Substantially Complete the Initial Tenant Improvements Work on or about the Estimated Commencement Date. If for any reason (other than Tenant Delay, as hereafter defined), Landlord’s Work shall not be Substantially Completed on the Estimated Commencement Date, this Lease shall nevertheless continue in full force and effect; the Commencement Date shall be postponed until Substantial Completion has occurred; and the Expiration Date shall be adjusted to provide for the full term of this Lease. If Landlord’s Work is delayed because of any Tenant Delay, then the Commencement Date shall be the day the Landlord would have otherwise Substantially Completed Landlord’s Work but for the occurrence of such Tenant Delay.
(b) When the Commencement Date occurs, Landlord and Tenant shall enter into an agreement memorializing the Commencement and Expiration Dates of this Lease in the form attached hereto as Exhibit “G” (the “Commencement Date Agreement”); provided, however, that the failure to enter into such an agreement shall not affect the Commencement Date or Expiration Date. Tenant shall acknowledge receipt of the Commencement Date Agreement by signing a copy of same and returning it to Landlord within five (5) business days of the receipt thereof. Tenant’s failure to sign the Commencement Date Agreement and return same to Landlord as provided in this Section shall be deemed to be Tenant’s acceptance of the Commencement Date and Expiration Date as stated in the Commencement Date Agreement.
(c) Intentionally Deleted
(d) Tenant agrees that Landlord shall have no obligation to do any work or perform any services with respect to the Premises, other than the Initial Tenant Improvements Work. Tenant shall accept possession of the Premises on the Commencement Date in its then “as-is” condition, subject to Landlord’s completion of the Initial Tenant Improvements Work.
(e) Landlord hereby grants to Tenant one (1) option to extend the Term for all (but not part) of the Premises in accordance with the provisions of this Section 2(e), Tenant must exercise the option for all of the Premises for a period of five (5) years, and such option to be exercised by Tenant giving written notice of its exercise to Landlord in the manner provided in this Lease not less than twelve (12) months prior to the expiration of the Term. The extension period shall commence on the day immediately following the last day of the Term. No extension option may be exercised by Tenant if an Event of Default exists at the time of exercise of the option.
| - 5 - |
(i) If Tenant exercises its option to extend the Term, Landlord shall, within thirty (30) days after receipt of Tenant’s exercise notice, notify Tenant in writing of Landlord’s reasonable determination of the Base Rent (including increases) and Common Expense Costs for the Premises for the five (5) year option period, which Base Rent amount shall be the Prevailing Market Rate (as hereafter defined) for such space. Tenant shall have thirty (30) days from its receipt of Landlord’s notice setting forth Landlord’s determination of Base Rent and Common Expense Costs to notify Landlord in writing that Tenant (i) agrees with Landlord’s determination of the Base Rent and Common Area Costs, or (ii) does not agree with Landlord’s determination of the Base Rent and that Tenant elects to determine the Prevailing Market Rate in accordance with the procedure set forth below. If Tenant does not so notify Landlord in writing within thirty (30) days of its receipt of Landlord’s notice, Base Rent and Common Expense Costs for the Premises for the applicable extended term shall be the Base Rent and Common Expense Costs set forth in Landlord’s notice to Tenant. The phrase “Prevailing Market Rate” shall mean the then prevailing market rate for the twelve (12) month period prior to Tenants’ renewal notice for base rent for a five (5) year term calculated on a per rentable square foot basis for leases covering buildings comparable to the condition of the Premises including the Initial Tenant Improvements and any subsequent Alteration made by Tenant located in central and northern New Jersey (hereinafter referred to as the “Market Area”), and taking into account all other relevant factors, including but not limited to rent concessions. The Prevailing Market Rate shall be determined by an appraisal procedure as follows:
In the event that Tenant notifies Landlord that Tenant disagrees with Landlord’s determination of the market rate and that Tenant elects to determine the Prevailing Market Rate, then Tenant shall specify, in such notice to Landlord, Tenant’s selection of a real estate appraiser, who shall act on Tenant’s behalf in determining the Prevailing Market Rate. Within twenty (20) days after Landlord’s receipt of Tenant’s selection of a real estate appraiser, Landlord, by written notice to Tenant, shall designate a real estate appraiser, who shall act on Landlord’s behalf in the determination of the Prevailing Market Rate. Within twenty (20) days of the selection of Landlord’s appraiser, the two (2) appraisers shall render a joint written determination of the Prevailing Market Rate. If the two (2) appraisers are unable to agree upon a joint written determination within said twenty (20) day period, the two appraisers shall select a third appraiser within such twenty (20) day period. Within twenty (20) days after the appointment of the third appraiser, the third appraiser shall render a written determination of the Prevailing Market Rate by selecting, without change, the determination of one (1) of the original appraisers as to the Prevailing Market Rate and such determination shall be final, conclusive and binding. All appraisers selected in accordance with this subparagraph shall have at least ten (10) years prior experience in the commercial leasing market of the Market Area and shall be members of the American Institute of Real Estate Appraisers or similar professional organizations. If either Landlord or Tenant fails or refuses to timely select an appraiser, the other appraiser shall alone determine the Prevailing Market Rate. Landlord and Tenant agree that they shall be bound by the determination of Prevailing Market Rate pursuant to this paragraph. Landlord shall bear the fee and expense of its appraiser, Tenant shall bear the fee and expenses of its appraiser, and Landlord and Tenant shall share equally the fee and expenses of the third appraiser, if any.
| - 6 - |
(ii) Except for the Base Rent, which shall be determined as set forth in subparagraph (e)(i) above and the Common Expense Costs as determined by Landlord in Landlord’s notice to Tenant setting forth Landlord’s determination of Base Rent and Common Expense Costs, the leasing of the Premises by Tenant for the applicable extended term shall be subject to all of the same terms and conditions set forth in this Lease, including Tenant’s obligation to pay Additional Rent; provided, however, that any rent abatements or other concessions applicable to the Premises during the initial Term shall not apply during any such extended term, nor shall Tenant have any additional extension options, beyond the option described in this Section 2(e). Landlord and Tenant shall promptly enter into an amendment to this Lease to evidence Tenant’s exercise of its renewal option, the Base Rent and Common Expense Costs for such renewal term, and the expiration date of such renewal term.
(iii) The option granted to Tenant in this Section 2(e) of the Lease is personal to the original Tenant or a Related Entity or Successor Entity, as the case may be, and may be exercised only by the original Tenant (or a Related Entity or Successor Entity, as the case may be), and may not be exercised or assigned, voluntarily or involuntarily, by or to any person or entity other than the original Tenant (or a Related Entity or Successor Entity, as the case may be). The option granted to Tenant in this Section 2(e) are not assignable separate and apart from this Lease nor may any option be separated from this Lease in any manner, either by reservation or otherwise. If at any time an option under this Section 2(e) is exercisable by Tenant, and the Lease has been assigned the option shall be deemed null and void.
| 3. | RENT. |
(a) Tenant hereby covenants and agrees, without the right of set off or deduction whatsoever, except as otherwise expressly provided in Section 6, Section 10 or Section 12 of this Lease, to pay to Landlord Base Rent, and additional rent, including, without limitation, the Common Expense Costs and Real Property Taxes (collectively, “Additional Rent”) during the Term. The Base Rent shall be paid in advance, on the first day of each calendar month during the Term commencing with the Rent Commencement Date, or if the Rent Commencement Date is not the first of a month, then on the first day of the month following the Rent Commencement Date. All payments required to be made by Tenant to Landlord under this Lease shall be made at Landlord's office at the address set forth above or at such other place as Landlord may from time to time designate to Tenant in writing. If the Rent Commencement Date is not the first day of a month, then monthly Base Rent for the partial month in which the Rent Commencement Date falls shall be prorated on a per diem basis. The Rent Commencement Date shall be the date which is ninety (90) days after the Commencement Date. During the entire Term, Tenant shall pay to Landlord, as yearly rent (hereinafter "Base Rent"), the following sums, in equal monthly installments, in advance on the first day of each calendar month:
| Period | Annual Rent PSF | Annual Base Rent | Monthly Base Rent | |||||||||
| Year 1* | $ | 36.00 | $ | 516,096.00 | $ | 43,008.00 | ||||||
| Year 2 | $ | 37.48 | $ | 537,313.28 | $ | 44,776.11 | ||||||
| Year 3 | $ | 39.02 | $ | 559,390.72 | $ | 46,615.89 | ||||||
| Year 4 | $ | 40.62 | $ | 582,328.32 | $ | 48,527.36 | ||||||
| Year 5 | $ | 42.29 | $ | 606,269.44 | $ | 50,522.45 | ||||||
| Year 6 | $ | 44.02 | $ | 631,070.72 | $ | 52,589.23 | ||||||
| Year 7 | $ | 45.82 | $ | 656,875.52 | $ | 54,739.63 | ||||||
| Year 8 | $ | 47.70 | $ | 683,827.20 | $ | 56,985.60 | ||||||
| Year 9 | $ | 49.66 | $ | 711,925.76 | $ | 59,327.15 | ||||||
| Year 10 | $ | 51.70 | $ | 741,171.20 | $ | 61,764.27 | ||||||
| Year 11*** | $ | 53.82 | $ | 771,563.52 | $ | 64,296.96 | ||||||
*Base Rent to be abated for the first three (3) months.
| - 7 - |
**Year 11 represents only three (3) months of the year.
The first monthly installment of Base Rent shall be paid by Tenant to Landlord upon execution of this Lease.
(b) If the payment of any sum required to be paid by Tenant to Landlord under this Lease (including, without limitation any Base Rent and Additional Rent) is not received by Landlord in good funds within five (5) Business Days after the date on which it is due and payable or should any check from Tenant be returned to Landlord as uncollectible, then, a delinquency service charge equal to four percent (4%) of the amount overdue (the “Service Charge”) shall become immediately due and payable to Landlord as liquidated damages for Tenant’s failure to make prompt payment to Landlord. Tenant acknowledges and agrees that the actual damages to Landlord due to such late or non-payment exceed the interest cost of money and are difficult to estimate. Such Service Charge shall become payable as Additional Rent within five (5) Business Days after Tenant’s receiving an invoice therefor. Tenant shall also pay Landlord as Additional Rent interest at an annual rate equal to 3 in excess of the prime rate announced from time-to-time by Citibank, NA or such other major commercial bank in the United States designated by Landlord (“Interest”), but subject to any maximum interest permitted by Law, on any amounts not received by Landlord from the date on which they became due and payable. In the event of nonpayment of any Service Charge and/or Interest provided for above, Landlord shall have, in addition to all other rights and remedies, all the rights and remedies provided for herein and by Law in the case of nonpayment of rent. Tenant’s obligation to pay any Service Charge and/or Interest as provided in this Section 3 shall continue beyond the expiration or sooner termination of this Lease.
| 4. | USE OF PREMISES. |
(a) The Premises shall be used and occupied by Tenant during the entire Term hereof subject to the other terms and conditions of this Lease for research and development of clinical trial drug products laboratory, general office and related uses incidental thereto (the "Permitted Use") and for no other purpose. Notwithstanding anything to the contrary contained herein, the provisions of this Section 4(a) shall not be construed as creating a covenant of continuous operation by Tenant during the Term. Subject to all applicable Laws, ordinances or regulations of any governmental authority, agency or department having jurisdiction over the Project, the Condominium Documents and the Rules and Regulations Landlord may impose from time to time during the Term, Tenant shall be permitted access to the Premises twenty-four (24) hours per day, seven days per week.
(b) Tenant shall not use, suffer or permit the use of the Premises or any part thereof in any manner or for any purpose or do, bring or keep anything, or suffer or permit anything to be done, brought or kept, therein (i) which would violate any covenant, agreement, term, provision or condition of this Lease or (ii) is unlawful or in contravention of the certificate of occupancy for the Building or (iii) is in contravention of any Laws or (iv) which would overload or could cause an overload of the electrical or mechanical systems of the Building or which would exceed one hundred (100) pounds per square foot, live load or (v) which in the reasonable judgment of the Landlord may in any way impair or interfere with the proper and economic heating, air conditioning of the Building or (vi) suffer or permit the Building or any component thereof to be used in any manner or anything to be done therein or anything to be brought into or kept thereon which, in the reasonable judgment of Landlord, would in any way impair or tend to impair or exceed the design criteria, the structural integrity, character or appearance of the Building, or result in the use of the Building or any component thereof in a manner or for a purpose not intended.
| - 8 - |
(c) If Tenant desires to use the Premises in a manner other than the Permitted Use, Tenant shall request Landlord’s prior written consent to such other use, which consent shall not be unreasonably withheld by Landlord provided such other use: (i) is permitted by applicable Laws, (ii) does not violate the Condominium Documents, (iii) is consistent with Landlord’s operation of the Project as a first class research and development project including general office use, (iv) is not a Prohibited Use shown on Exhibit “P” as same may be further supplemented and amended by Landlord from time to time during the Term, and (v) would not cause Landlord to be in violation of its obligations under another lease or agreement in connection with the Project to which Landlord is a party, including, without limitation any exclusive or restrictions granted to any tenant or occupant pursuant to a lease or other agreement entered into prior to Tenant’s request for Landlord’s consent to any change of use by Tenant.
| 5. | COMMON EXPENSE RENT AND REAL PROPERTY TAXES. |
(a) In addition to the Base Rent, Tenant shall pay to Landlord as Additional Rent the following Sums (the “Common Expense Rent”) for costs incurred by Landlord in connection with the operation, maintenance and repair of the Project (hereinafter, collectively “Common Expense Costs”), in equal monthly installments, in advance on the first day of each calendar month:
| Period | Annual Common Expense Costs PSF* | Annual Common Expense Rent | Monthly Common Expense Rent | |||||||||
| Year 1 | $ | 14.00 | $ | 0.00 | $ | 0.00 | ||||||
| Year 2 | $ | 14.42 | $ | 6,021.12 | $ | 501.76 | ||||||
| Year 3 | $ | 14.85 | $ | 12,185.60 | $ | 1,015.47 | ||||||
| Year 4 | $ | 15.30 | $ | 18,636.80 | $ | 1,553.07 | ||||||
| Year 5 | $ | 15.76 | $ | 25,231.36 | $ | 2,102.61 | ||||||
| Year 6 | $ | 16.23 | $ | 31,969.28 | $ | 2,664.11 | ||||||
| Year 7 | $ | 16.72 | $ | 38,993.92 | $ | 3,249.49 | ||||||
| Year 8 | $ | 17.22 | $ | 46,161.92 | $ | 3,846.83 | ||||||
| Year 9 | $ | 17.74 | $ | 53,616.64 | $ | 4,468.05 | ||||||
| Year 10 | $ | 18.27 | $ | 61,214.72 | $ | 5,101.23 | ||||||
| Year 11 | $ | 18.82 | $ | 69,099.52 | $ | 5,758.29 | ||||||
* Common Expense Costs include, without limitation, maintenance of Common Areas, central utility plant operations, Landlord’s insurance premiums, utilities for the Common Areas and utilities to be provided by Landlord pursuant to this Lease and security for the Project. The parties acknowledge that the amount of Common Expense Rent is fixed, Landlord shall not be entitled to reimbursement by Tenant is the actual Common Expense Costs during the year are greater than the amount set forth above, nor shall Tenant be entitled to a refund in the event actual Common Expense Costs during the year are less than the amount set forth above.
| - 9 - |
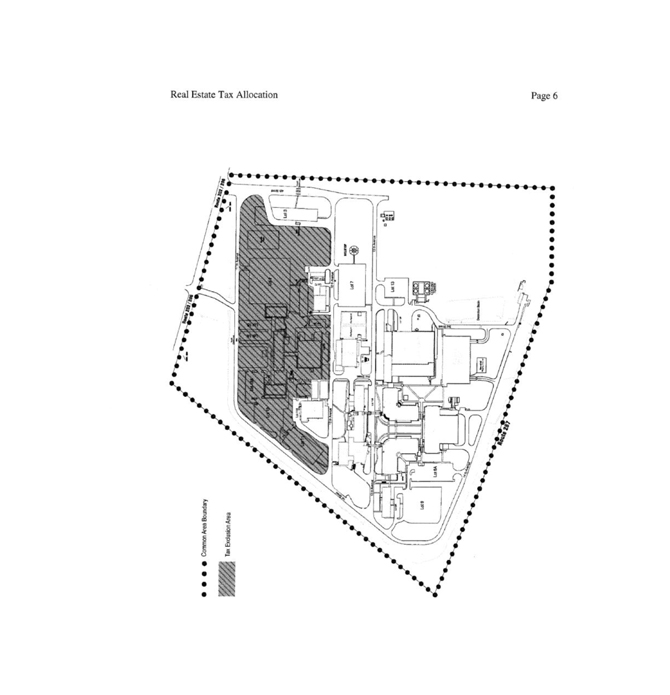
(b) The parties acknowledge that on the Effective Date, the Real Property Taxes (as hereafter defined) for the Project (of which the Premises is a part) and the Exclusion Area are a compilation of bills for the Tax Lots. The parties further acknowledge that as of the Effective Date; (i) the Project is located within a condominium project known as Peters Brook Village (the “Condominium Project”) pursuant to a Master Deed and By-Laws dated as of November 4, 2013 and recorded in Book 6684, Page 2222, as Instrument No. 2013061980, as same may be amended from time to time (the “Condominium Documents”), (ii) the Tax Assessor for Bridgewater Township has not set separate real estate tax assessments for the individual condominium units located within the Condominium Project, and (iii) the Premises is currently one of four (4) separate tenantable buildings located within Unit 2 of the Condominium Project (“Condominium Unit 2”). Landlord shall pay, prior to delinquency, the Real Property Taxes, as defined in Section 5(b), applicable to the Project, or Condominium Unit 2, as applicable, subject to reimbursement by Tenant of Tenant’s proportionate share of such Real Property Taxes in accordance with the provisions of Section 5(b).
(ii) From the Effective Date through the day immediately preceding the Real Property Tax Conversion Date (as hereinafter defined) , the term “Real Property Taxes” shall include any form of real estate tax or assessment, general, special, ordinary, or extraordinary, and any license fee, commercial rental tax payable by Landlord, improvement bond or bonds, levy, or tax imposed on the Project or any portion thereof by any authority having the direct or indirect power to tax, including any city, township, county, state, or federal government, or any school, agricultural, sanitary, fire, street, drainage, or other improvement district thereof, as against any legal or equitable interest of Landlord in the Project or in any portion thereof, as against Landlord’s right to rent or other income therefrom, or as against Landlord’s business of leasing the Project, but shall exclude the following: inheritance, income, estate, gift, transfer, franchise, excise, capital stock, gains or foreign ownership or control, mortgage recording, transfer or transfer gain or excess profit taxes, and shall exclude any late payment charges and penalties due to Landlord’s late payment of Real Property Taxes. For purposes of this Lease, the “Real Property Tax Conversion Date” shall be the date that the Tax Assessor for Bridgewater Township shall set separate real estate tax assessments for, and Bridgewater Township shall issue separate tax bills showing the assessments on the land and the total assessment of all improvements located within the individual condominium units in the Condominium Project.
(iii) From and after the Real Property Tax Conversion Date, the term “Real Property Taxes” shall include any form of real estate tax or assessment, general, special, ordinary, or extraordinary, and any license fee, commercial rental tax payable by Landlord, improvement bond or bonds, levy, or tax imposed on Condominium Unit 2 or any portion thereof by any authority having the direct or indirect power to tax, including any city, township, county, state, or federal government, or any school, agricultural, sanitary, fire, street, drainage, or other improvement district thereof, as against any legal or equitable interest of Landlord in Condominium Unit 2 or in any portion thereof, as against Landlord’s right to rent or other income therefrom, or as against Landlord’s business of leasing Condominium Unit 2, but shall exclude the following: inheritance, income, estate, gift, transfer, franchise, excise, capital stock, gains or foreign ownership or control, mortgage recording, transfer or transfer gain or excess profit taxes, and shall exclude any late payment charges and penalties due to Landlord’s late payment of Real Property Taxes.
| - 10 - |
(iv) The term “Real Property Taxes” shall also include any tax, fee, levy, assessment, or charge (a) in substitution of, partially or totally, any tax, fee, levy, assessment, or charge hereinabove included within the definition of “Real Property Tax,” or (b) the nature of which was hereinbefore included within the definition of “Real Property Tax,” or (c) which is added to a tax or charge hereinbefore included within the definition of Real Property Tax by reason of such change of ownership, or (d) which is imposed by reason of this transaction, any modifications, or changes hereto, or any transfers hereof, or (e) reasonable expenses incurred by Landlord in attempting to protest, reduce, or minimize Real Property Taxes. With respect to the payment of assessments, special or otherwise, payment of installments over the longest possible term shall be deemed to have been elected in any instance where a determinable option so to pay existed, or may exist, notwithstanding that any assessment may be paid in full during the Term.
(v) If at any time during the Term, the method of taxation for Real Property Taxes prevailing on the Effective Date, or the Real Property Tax Conversion Date, as the case may be, is altered so that any new tax, assessment, levy, imposition or charge shall be substituted therefor, or shall be imposed upon Landlord in addition thereto (including, without limitation, any tax, assessment or levy based in whole or in part upon the Lease, the Premises, or the Base Rent, Additional Rent, or other income therefrom), then all such taxes, assessments, levies, impositions or charges, or the part thereof, shall be deemed be included within the term “Real Property Taxes” for the purposes of this Lease, and Landlord shall pay and discharge the same prior to delinquency, subject to reimbursement by Tenant of Tenant’s proportionate share of such Real Property Taxes in accordance with the provisions of Section 5.
(c) From the Commencement Date through the day immediately preceding the Real Property Tax Conversion Date, Tenant’s proportionate share of Real Property Taxes shall be calculated based upon the amount by which the Real Property Taxes allocated to the Building utilizing the methodology described in Exhibit “H” attached hereto for any calendar year during the Term subsequent to the Base Tax Year (as hereafter defined) exceeds the Real Property Taxes allocated to the Building utilizing the methodology described in Exhibit “H” for the 2016 calendar year (the “Base Tax Year”). For purposes of the Section 5(c), Tenant’s proportionate share shall mean a fraction the numerator of which is the total rentable square footage of the Premises, as same may change from time to time during the Term and the denominator of which shall be the total rentable square footage of the Building. On or before the January 1, 2017 and thereafter within one hundred twenty (120) days following the first day of each successive calendar year within the Term that occurs prior to the Real Property Tax Conversion Date, Landlord shall reasonably determine or estimate amount by which the Real Property Taxes allocated to the Building utilizing the methodology described in Exhibit “H” for such calendar year exceed the Real Property Taxes allocated to the Building utilizing the methodology described in Exhibit “H” for the Base Tax Year (the "Projected Pre-Conversion Real Property Taxes") and shall submit such information to Tenant in a written statement, together with copies of the applicable tax bill(s) and documentation evidencing the calculation prepared by Landlord ("Landlord’s Tax Statement"). Beginning on the January 1, 2017, following the giving of a Landlord’s Tax Statement and continuing thereafter until Landlord renders the next Landlord’s Tax Statement, Tenant shall pay to Landlord on account of its obligation under this Section of this Lease, a sum (the "Monthly Tax Payment") equal to one-twelfth (1/12) of Tenant’s proportionate share of the Projected Pre-Conversion Real Estate Taxes for such calendar year. Tenant’s first Monthly Tax Payment after receipt of Landlord’s Tax Statement shall be accompanied by the payment of an amount equal to the product of the number of full months, if any, within the calendar year which shall have elapsed prior to such first Monthly Tax Payment, times the Monthly Tax Payment. Each Landlord’s Tax Statement shall reconcile the payments made by Tenant pursuant to the preceding Landlord’s Tax Statement with Tenant’s proportionate share of the actual Real Property Taxes imposed for the period covered thereby. Any balance due to Landlord shall be paid by Tenant within thirty (30) days after Tenant’s receipt of Landlord’s Tax Statement; and Landlord shall credit any surplus due to Tenant against the next accruing Monthly Tax Payment(s) of Tenant, or if the Term shall have expired, the amount of such overpayment shall be refunded to Tenant within thirty (30) days following delivery of Landlord’s Tax Statement. Notwithstanding anything to the contrary contained in this subsection, if the Term shall have expired as a result of a default by Tenant, or Tenant shall be in default of its obligations under this Lease on the Expiration Date, then Landlord shall have the right to retain the amount of such surplus and apply it against any Base Rent or Additional Rent that Tenant owes Landlord. Tenant’s proportionate share of Real Property Taxes for the calendar year within which the Expiration Date occurs shall be prorated based upon the number of days in such year falling within the Term.
| - 11 - |
(d) Notwithstanding anything to the contrary contained in Section 5(c) above, from and after the Real Property Tax Conversion Date, the Tenant’s proportionate share of Real Property Taxes shall mean the amount by which the sum of (i) (A) the product of the then assessed valuation for Building L (as determined by the valuation of Building L set forth on the Property Record Card maintained in the office Tax Assessor for Bridgewater Township, or any successor thereto) and a fraction, the numerator of which is the rentable square footage of the Premises, and the denominator of which is the rentable square footage of Building L, multiplied by (B) the then applicable tax rate for Bridgewater Township, and (ii) the product of the then assessed valuation of the land located within Condominium Unit 2 and the then applicable tax rate for Bridgewater Township, which product shall then be multiplied by the fraction, the numerator of which shall be the then current rentable square footage of the Premises, and the denominator of which shall be the then current rentable square footage of all tenantable buildings located within Condominium Unit 2, exceeds the Real Property Taxes allocated to the Building utilizing the methodology described in Exhibit “H” for the Base Tax Year. Promptly following the Real Property Tax Conversion Date and thereafter within one hundred twenty (120) days following the first day of each successive calendar year within the Term that occurs after the Real Property Tax Conversion Date, Landlord shall reasonably determine or estimate the Real Property Taxes for such calendar year (the "Projected Post-Conversion Real Property Taxes") and shall submit such information to Tenant in Landlord’s Tax Statement. Beginning on the Commencement Date following giving of a Landlord’s Tax Statement and continuing thereafter until Landlord renders the next Landlord’s Tax Statement, Tenant shall pay to Landlord on account of its obligation under this Section of this Lease, a Monthly Tax Payment equal to one-twelfth (1/12) of Tenant’s proportionate share of the Projected Post-Conversion Real Estate Taxes for such calendar year. Tenant’s first Monthly Tax Payment after receipt of Landlord’s Tax Statement shall be accompanied by the payment of an amount equal to the product of the number of full months, if any, within the calendar year which shall have elapsed prior to such first Monthly Tax Payment, times the Monthly Tax Payment. Each Landlord’s Tax Statement shall reconcile the payments made by Tenant pursuant to the preceding Landlord’s Tax Statement with Tenant’s proportionate share of the actual Real Property Taxes imposed for the period covered thereby. Any balance due to Landlord shall be paid by Tenant within thirty (30) days after Tenant’s receipt of Landlord’s Tax Statement; and Landlord shall credit any surplus due to Tenant against the next accruing Monthly Tax Payment(s) of Tenant, or if the Term shall have expired, the amount of such overpayment shall be refunded to Tenant within thirty (30) days following delivery of Landlord’s Tax Statement. Notwithstanding anything to the contrary contained in this subsection, if the Term shall have expired as a result of a default by Tenant, or Tenant shall be in default of its obligations under this Lease on the Expiration Date, then Landlord shall have the right to retain the amount of such surplus and apply it against any Base Rent or Additional Rent that Tenant owes Landlord. Tenant’s proportionate share of Real Property Taxes for the calendar year within which the Expiration Date occurs shall be prorated based upon the number of days in such year falling within the Term.
(e) Landlord shall have the exclusive right to contest any valuation of Condominium Unit 2, or any part thereof (including the Premises), or the amount of any Real Property Taxes, by legal proceedings, or in such other manner as it deems suitable. If Landlord obtains a refund or abatement of Real Property Taxes for (i) the Building, or (ii) for the land portion of Condominium Unit 2, as the case may be, then Landlord shall first be entitled to receive a reimbursement from any refund or abatement for all expenses, including reasonable attorneys’ fees, incurred by it in connection with obtaining such refund or abatement. After deduction of the expenses described in the immediately preceding sentence, the Landlord shall credit Tenant’s proportionate share of the net refund or abatement of Real Property Taxes for (i) the Building, or (ii) for the land portion of Condominium Unit 2, as the case may be, for any year in which Tenant contributed to Real Property Taxes pursuant to the terms hereof, against the next accruing Monthly Tax Payment(s) of Tenant, or if the Term shall have expired, Tenant’s proportionate share of the net refund or abatement shall be refunded to Tenant within thirty (30) days after receipt thereof by Landlord. Notwithstanding anything to the contrary contained in this subsection, if the Term shall have expired as a result of a default by Tenant, or Tenant shall be in default of its obligations under this Lease on the Expiration Date, then Landlord shall have the right to retain Tenant’s proportionate share of the net refund or abatement and apply it against any Base Rent or Additional Rent that Tenant owes Landlord.
| - 12 - |
6. BUILDING SERVICES AND UTILITIES. (a) Landlord shall at its sole cost and expense, furnish to the Premises reasonable quantities of heating, ventilation and air conditioning during and after “Business Hours” (hereafter defined) on “Business Days” and non-Business Days (hereafter defined) through the Building heating ventilation and air-conditioning systems (the “HVAC Systems”). Heating, ventilation and air conditioning shall be provided by the Landlord to Tenant at no cost to Tenant twenty four hours a day, seven day per week and 365 days per year. For purposes of this Section 6 only, “Business Hours” shall mean the hours of 8:00 a.m. through 6:00 p.m. Monday-Friday and the hours 8:00 a.m. through 1:00 p.m. on Saturday, and “Business Days” shall mean all days, excluding Sundays and all days observed as legal holidays by the State of New Jersey. Non-Business Days and After Business Hours shall mean all other times and days without limitation. Landlord shall make have available at the Premises electric service, city water for ordinary lavatory and cleaning purposes, sanitary sewer, storm sewer, steam, chilled water, compressed air and natural gas, which costs are included in Common Expense Costs (collectively, the “Utilities”). Landlord shall provide service elevator service during Business Hours on Business Days. Tenant shall provide for all cleaning and extermination services required by Tenant, and shall furnish, install and replace all lighting tubes, lamps, bulbs and ballasts required by Tenant during the Term, at Tenant’s sole cost and expense. Tenant shall be solely responsible for the replacement, repair and maintenance of any utility equipment within the Premises that only services the Premises. Landlord and Tenant acknowledge and agree that on the Effective Date there are no systems within the Premises that only service the Premises. Tenant’s use of electrical energy and any other utility in the Premises shall not, at any time, exceed the capacity of either or both of (x) any of the electrical or any other utility equipment in or otherwise servicing the Premises; and (y) the HVAC Systems of the Premises. Landlord reserves the right, without any liability to Tenant and without affecting Tenant’s covenants and obligations hereunder, to stop service of any or all of the HVAC, electric, sanitary, and other systems serving the Premises, or to stop any other services required by Landlord under this Lease, whenever and for so long as may be necessary by reason of (i) accidents, emergencies, strikes, or the making of repairs or changes which Landlord deems necessary in its reasonable discretion or (ii) any other cause beyond Landlord’s reasonable control; provided Landlord shall use commercially reasonable efforts to minimize interference with Tenant’s use and occupancy of the Premises. Landlord shall not be liable to Tenant for interference in or interruption or any utility or other services, nor shall any curtailment or interruption constitute a constructive eviction or grounds for rental abatement in whole or in part hereunder, except as otherwise expressly provided in Section 6(b) below.
| - 13 - |
(b) In the event that Tenant is prevented from using, and does not use the Premises or any portion thereof, as a result of any failure to provide any Utilities resulting from any negligent or willful act or omission of Landlord or its agents, employees or contractors (an “Abatement Event”), then Tenant shall give Landlord notice (an “Abatement Event Notice”) of such Abatement Event, Landlord shall thereafter use commercially diligent efforts to cause such Abatement Event to be cured as soon as reasonably possible, and if such Abatement Event continues for the Eligibility Period (defined below), then the Base Rent and Additional Rent shall be abated or reduced, as the case may be, after expiration of the Eligibility Period for such time that Tenant continues to be so prevented from using, and does not use, the Premises or a portion thereof, in the proportion that the rentable square footage of the portion of the Premises that Tenant is prevented from using, and does not use, bears to the total rentable square footage of the Premises. Notwithstanding anything to the contrary contained herein, if Tenant resumes using any portion of the Premises it had previously been prevented from using, and did not use, then the Base Rent and Additional Rent allocable to such used portion, based on the proportion that the rentable square footage of such used portion of the Premises bears to the total rentable square footage of the Premises, shall be payable by Tenant to Landlord from the date Tenant resumed use of such portion of the Premises. The “Eligibility Period” means a period of five (5) consecutive Business Days after Landlord receives an Abatement Event Notice from Tenant with respect to any Abatement Event.
| 7. | MAINTENANCE AND REPAIRS. |
(a) Landlord shall maintain and make all repairs and replacements to the foundation, the bearing walls, the structural columns and beams, the exterior walls, the exterior windows, the roof (including the membrane, but excluding any rooftop antennas or other telecommunications facilities permitted to be maintained by Tenant on the roof of the Building and any damage to the membrane resulting from the Tenant’s installation, maintenance, repair or removal of such rooftop antennas or other telecommunications facilities, if any, pursuant to the terms of this Lease), the service elevator, the common portions of the Building interior and the Building HVAC, electric, sanitary, life safety and other systems serving the Premises (including, but not limited to all pipes and conduits which are part thereof (collectively the “Building Systems”); provided, however, that if such repairs and replacements are necessitated by the willful misconduct or gross negligence of Tenant or Tenant’s Agents, then Tenant shall reimburse Landlord, upon demand, for the reasonable cost thereof.
| - 14 - |
(b) Except as expressly set forth in Section 7(a) above, Tenant shall take such action as may be reasonably necessary or appropriate to keep and maintain the Premises in good order and condition, and shall keep the Premises in at least the same condition as same are delivered to Tenant on the Commencement Date (except for ordinary wear and tear). Tenant acknowledges and agrees that all maintenance and repairs not required to be made by Landlord pursuant to Section 7(a) hereof, shall be made by Landlord at the sole cost and expense of Tenant, provided in each instance Landlord shall notify Tenant in advance of the scope of such maintenance or repair (unless such maintenance or repair shall be required because of an emergency condition, in which Landlord shall endeavor to provide Tenant with such notice of such maintenance or repair as shall be reasonable under the circumstances), and Tenant shall approve the cost of such maintenance or repair, which approval shall not be unreasonably be withheld, delayed or conditioned. Notwithstanding anything to the contrary contained herein, Tenant acknowledges and agrees that Tenant, at its sole cost and expense, shall maintain a service contract for the maintenance and repair and replacement of any utility equipment within the Premises that only services the Premises, which service contract shall be maintained with a vendor reasonably approved by Landlord. Except as expressly provided in this Lease, Landlord shall not be obligated in any way to maintain, alter or repair the Premises. Notice is hereby given that, except with respect to repairs or restoration undertaken by Landlord, Landlord will not be liable for any labor, services or materials furnished or to be furnished to Tenant, or to anyone holding the Premises or any part thereof through or under Tenant, and that no mechanics' or other liens for any such labor or materials shall attach to or affect the interest of Landlord in and to the Building.
(c) All maintenance and repair performed by, on behalf of or for the account of Tenant (i) shall not, individually or in the aggregate or adversely affect the Building, (ii) shall be completed expeditiously in a good and workmanlike manner, and in compliance with all applicable Laws, (iii) shall be completed free and clear of all liens and (iv) shall be performed by contractors approved by Landlord. Subject to the terms of Section 7(b), all maintenance and repairs performed by Landlord for the account of Landlord (1) shall be completed expeditiously in a good and workmanlike manner, and in compliance with all applicable Laws, (2) shall be completed free and clear of all liens.
| 8. | INSURANCE AND INDEMNIFICATION. |
(a) Tenant shall obtain, and shall keep in full force and effect during the Term, the following insurance coverages on a primary and non-contributory basis, with insurers which are authorized to do business in the State of New Jersey and which are rated at least A- VIII in Best's Key Rating Guide:
(i) commercial general liability insurance on an occurrence form (including, during any period when Tenant is making alterations or improvements to the Premises, coverage for any construction on or about the Premises), against claims for bodily injury, personal injury, death or property damage occurring on, in or about the Premises, or as a result of ownership of facilities located on the Premises, insurance premise operations and products and completed operations in an amount per occurrence of not less than Five Million Dollars ($5,000,000) combined single limit for any bodily injury, personal injury, death or property damage with a per location aggregate. The limit required may be achieved by the combination of general liability and umbrella / excess liability. Any umbrella / excess liability will provide coverage excess of the underlying CGL, Auto liability and employer’s liability insurance;
(ii) workers' compensation insurance coverage for the full statutory liability of Tenant and employers liability insurance coverage;
(iii) business interruption insurance in such amounts as will reimburse Tenant for direct and indirect loss of earnings attributable to those events commonly insured against by reasonable prudent tenants and/or attributable to Tenant’s inability to access or to occupy (all or part of) the Premises; and
| - 15 - |
(iv) Special Form property coverage, including, but not limited to, standard fire and extended coverage insurance with vandalism and malicious mischief endorsements, on all personal property of Tenant, including any Retained FF&E, and on all improvements and alterations made by, on behalf of and/or at the expense of Tenant in or about the Premises or other portions of the Building (including, without limitation, the Initial Tenant Improvements Work) to the extent of their full replacement value.
(v) comprehensive automobile liability insurance coverage, including hired and non-owned vehicles with a combined single limit of not less than $1,000,000;
(vi) such other insurance with respect to the Premises in such amounts and against such insurable exposures as may reasonably and customarily be required by any mortgagee holding a first lien upon the Building.
Tenant shall cause any contractor working for or on behalf of Tenant in or about the Premises to maintain worker’s compensation and reasonable amounts of commercial general and excess liability insurance (but in no event less than $2,000,000.00 per occurrence and in the aggregate) and to add Landlord and Landlord’s managing agent as additional insured as required of Tenant per Section 8 (b). Tenant and/ or contractor shall provide evidence of such insurance to Landlord prior to entering the Premises, prior to each renewal.
(b) The policies of insurance required to be maintained by Tenant pursuant to Section 8(a) shall name Tenant as named insured and shall name Landlord and Landlord’s managing agent as additional insured parties (except for workers' compensation insurance and business interruption insurance) and shall be reasonably satisfactory to Landlord. In addition, said policies of insurance (except for worker's compensation insurance) shall not contain a provision relieving the insurer thereunder of liability for any loss by reason of the existence of other policies of insurance covering the Premises against the peril involved, whether collectible or not; and the policies of insurance required to be maintained by Tenant pursuant to subsection (a) shall also include contractual liability coverage of Tenant’s obligation to indemnify Landlord pursuant to Section 8(f)(iii) hereof. In addition to the foregoing, Landlord may, to the extent permitted by law, require that Tenant name as additional insureds such other persons or entities as Landlord may designate in writing, and original or duplicate certificates of insurance evidencing the addition of such parties as additional insureds shall be delivered to Landlord not later than ten (10) days following Landlord’s notice designating such additional insureds.
| - 16 - |
(c) On or prior to the Commencement Date, Tenant shall deliver to Landlord certificates of insurance evidencing all the insurance which is required to be maintained hereunder by Tenant, and, within ten (10) days prior to the expiration of any such insurance, other certificates evidencing the renewal of such insurance.
(d) Tenant shall not obtain or carry separate insurance concurrent in form or contributing in the event of loss with that required by Section 8(a) unless Landlord and Tenant are named as insureds and additional insureds as applicable therein.
(e) Landlord shall keep in force at its expense (subject to reimbursement as set forth in this Lease) insurance in such amounts, with such deductibles and covering such risks as are customarily carried by companies engaged in similar businesses and leasing similar properties to the Premises. Landlord shall, at a minimum carry Special Form coverage, including, but not limited to, standard fire and extended coverage insurance with vandalism and malicious mischief endorsements, on all improvements at the Project for full replacement value, but expressly excluding the Initial Tenant Improvements and the any other Alterations performed in the Premises by, or for the benefit of Tenant during the Term of this Lease. Such insurance will be with financially sound and reputable insurance companies. Further, the insurance coverages required by Landlord in this Section 8 may be provided by a blanket policy covering the Buildings, the Project, and other properties leased or owned by Landlord.
(f) Landlord hereby waives and releases Tenant, and Tenant hereby waives and releases Landlord, from any and all liabilities, claims and losses for which the released party is or may be held liable to the extent of any property insurance proceeds received by said injured party. Notwithstanding any provision contained herein to the contrary, Landlord and Tenant each hereby waives any and all rights of recovery, claims, actions or causes of action against the other, its agents, servants, partners, shareholders, officers, or employees, for any loss or damage that may occur to the Premises, the Buildings, the Common Areas, the Parking Areas or the Project, or any improvements thereto, or any personal property of such party therein, caused or occasioned by any peril which is or could be insured under the special form coverage insurance policies required to be carried by any party under this Lease, or which is otherwise insured, regardless of cause or origin, including the negligence of the other party hereto, its agents, officers, partners, shareholders, servants or employees.
(i) Each party hereto shall have included in each of its insurance policies (insuring the Building in the case of Landlord, and insuring Tenant’s personal property, trade fixtures, equipment and improvements in the case of Tenant, against loss, damage or destruction by fire or other casualty) a waiver of the insurer's right of subrogation against the other party to this Lease. If there is any extra charge for such waiver, the party requesting the waiver shall pay the extra charge therefor. If such waiver is not enforceable or is unattainable, then such insurance policy shall contain either an (A) express agreement that such policy shall not be invalidated if Landlord or Tenant, whichever the case may be, waives the right of recovery against the other party to this Lease or (B) any other form for the release of Landlord or Tenant, whichever the case may be. If such waiver, agreement or release shall not be, or shall cease to be, obtainable from Landlord’s insurance company or from Tenant’s insurance company, whichever the case may be, then Landlord or Tenant shall notify the other party of such fact and shall use its best efforts to obtain such waiver, agreement or release from another insurance company satisfying the requirements of this Lease.
| - 17 - |
(ii) Subject to the mutual waiver of claims and subrogation set forth in Section 8(f), Tenant hereby indemnifies, and shall pay, protect and hold Landlord harmless from and against all liabilities, losses, claims, demands, costs, expenses (including attorneys' fees and expenses) and judgments of any nature, except for such of the foregoing as arise from the negligence, recklessness or willful misconduct of Landlord, its agents, representatives, servants, employees, contractors, invitees and/or licensee [collectively, the Landlord’s Parties] ), arising, or alleged to arise, from or in connection with (a) any breach or default in the performance of any obligation of Tenant to be performed under the terms of this Lease, (b) any act or omission of Tenant, or any of Tenant’s Agents, arising from any activity, work or things done by Tenant, or any of Tenant’s Agents, in or about the Project, or (c) Tenant’s use of the Project, or from the conduct of Tenant’s business in or about the Project. Tenant will resist and defend any action, suit or proceeding brought against Landlord by reason of any such occurrence by independent counsel selected by Tenant, which is reasonably acceptable to Landlord. The obligations of Tenant under this Section 8(f)(ii) shall survive any termination of this Lease.
(iii) Subject to the mutual waiver of claims and subrogation set forth in Section 8(f), Landlord hereby indemnifies, and shall pay, protect and hold Tenant and Tenant’s employees, officers, members, employees, shareholders, agents, representatives, contractors, invitees, and licensees (collectively, “Tenant Indemnitees”) harmless from and against all liabilities, losses, claims, demands, costs, expenses (including reasonably attorneys' fees and expenses) and judgments of any nature, and except for such of the foregoing as arise from the negligence, recklessness or willful misconduct of Tenant or Tenant’s Agents, arising directly from or directly in connection with (a) any breach or default in the performance of any obligation of Landlord to be performed under the terms of this Lease, and (b) any act or omission of Landlord or any of Landlord’s Parties arising from any activity, work or things done by Landlord or any of Landlord’s Parties in or about the Project. Landlord will resist and defend any action, suit or proceeding brought against Tenant or Tenant Indemnitees by reason of any such occurrence by independent counsel selected by Landlord, which is reasonably acceptable to Tenant. The obligations of Landlord under this Section 8(f)(iii) shall survive any termination of this Lease.
9. LANDLORD'S RIGHT TO PERFORM TENANT'S COVENANTS. Tenant covenants and agrees that if Tenant shall at any time fail to perform any of the covenants on its part to be made or performed under this Lease after any applicable notice and cure period, and such failure continues for a period of five (5) Business Days after Landlord notifies Tenant of Landlord’s intention to perform (except in the event of an emergency, in which case prior notice shall not be required) Landlord may, but shall not be obligated, without waiving or releasing Tenant from any obligation under this Lease, perform such act to the extent that Landlord deems such act reasonably necessary and any such act shall not constitute an eviction of Tenant. All expenses reasonably incurred by Landlord in connection therewith shall be deemed Additional Rent hereunder and be payable to the Landlord on demand.
| - 18 - |
| 10. | CONDEMNATION. |
(a) If the whole, or any part of the Premises shall be taken by any public, or quasi-public authority under any statute or by power or right of eminent domain, the Term shall cease from the day the possession of the condemned portion shall be taken by the condemning authority.
(b) The entire compensation award for any taking shall belong to and be the property of Landlord, including but not limited to, all damages as compensation for diminution in value of the leasehold, reversion, and fee, without any deduction therefrom for any present or future estate of Tenant, and Tenant hereby assigns such award to Landlord, except that Tenant shall be entitled to receive such portion thereof as may be allocated to compensation paid for Tenant's Property, as well as Tenant’s loss of business and the cost of relocation, so long as such claim does not reduce the award to which Landlord is entitled.
(c) For the purpose of this Section 10, a sale to such public or quasi-public authority under threat of condemnation shall constitute a vesting of title and shall be construed as a taking by such condemning authority.
(d) Landlord shall promptly notify Tenant of any notice Landlord has of any condemnation or taking affecting the Project.
(e) In the event that the operation of Tenant’s business shall be or is materially and adversely affected by a condemnation or taking so that Tenant shall not be able to operate in the post condemnation Premises in economically efficient manner and/or the parking of Tenant shall be or is materially and adversely reduced as a result thereof and Landlord shall not provide Tenant with reasonable replacement parking within the Project, then Tenant shall have the right to terminate this Lease upon notice to Landlord.
11. QUIET ENJOYMENT. Landlord covenants and agrees that Tenant upon paying the Base Rent and Additional Rent and all other charges herein provided for and performing and fulfilling the covenants, agreements, and conditions of this Lease on the Tenant's part to be performed and fulfilled, shall peaceably and quietly hold, occupy and enjoy the Premises during the Term without hindrance or molestation by the Landlord or any person(s) claiming through the Landlord, subject, however, to the terms and conditions of this Lease.
| - 19 - |
| 12. | DAMAGE OR DESTRUCTION. |
(a) In the event the Premises are damaged by fire or other casualty, Landlord shall retain a reputable, independent third-party contractor reasonably acceptable to Tenant who, within ninety (90) days of such casualty, shall give written notice (the “Determination Notice”) to Landlord and Tenant of its determination of how long it will take to rebuild and restore the damaged Premises to the Delivery Condition (as hereafter defined). In addition, Landlord shall, within such ninety (90) day period, obtain written confirmation from the mortgagee of the Premises, if any, as to whether it will make all or substantially all of the insurance proceeds payable in connection with such casualty available for restoration (the “Mortgagee Notice”), and Landlord shall promptly deliver the Mortgagee Notice to Tenant. In the event that the Premises is so destroyed that it cannot be repaired or rebuilt to the Delivery Condition within nine (9) months after the expiration of ninety (90) days after the date of such casualty, or if Tenant’s access to the Premises shall be interrupted for nine (9) months regardless of whether or not the Premises are damaged by fire or other casualty, or if there are less than twelve (12) months remaining in the Term and the Premises is so damaged that it cannot be repaired or rebuilt within sixty (60) days after the expiration of ninety (90) days after the date of such casualty, or the mortgagee of the Premises has informed Landlord that such mortgagee will not make all or substantially all of the insurance proceeds payable in connection with such casualty available for restoration, then, within thirty (30) days of delivery of the Determination Notice and Mortgagee Notice, by delivery of a notice to the other, either Landlord or Tenant may terminate this Lease. Upon the giving of any termination notice pursuant to this Section, all obligations hereunder with respect to periods from and after the effective date of termination shall thereupon cease and terminate, and in such event the Base Rent and all Additional Rent and other sums payable under this Lease shall be apportioned and paid in full by Tenant to Landlord to that date, and neither party shall thereafter have any liability hereunder, except that any obligation or liability of either party, actual or contingent, under this Lease which has accrued on or prior to such termination shall survive. For purposes of this Lease, the term the “Delivery Condition” shall mean the Premises on the Effective Date, without the Initial Tenant Improvements completed.
(b) If this Lease is not terminated pursuant to Section 12(a), Landlord shall expeditiously (subject to Force Majeure and Tenant Delays and taking into account the time necessary to adjust insurance proceeds, prepare plans and specifications, and obtain all required governmental approvals) restore the Premises to the Delivery Condition, subject to modifications required by applicable Laws. Landlord and Tenant shall cooperate and coordinate with each other regarding the performance of their respective restoration obligations. In the event that Tenant is prevented from using, and does not use, all or any portion of the Premises as a result of any such casualty, then, from the date of such casualty until the Abatement Expiration Date (as defined below), (a) Base Rent shall abate in proportion to the portion of the Premises rendered unusable, utilizing the Base Rent rate applicable to any such portion of the Premises, (b) the Additional Rent consisting of Common Expense Costs shall abate in proportion to the rentable square footage of the portion of the Premises rendered unusable and (c) Additional Rent consisting of Tenant’s proportionate share of Real Property Taxes shall abate in proportion to the portion of the Premises rendered unusable. The “Abatement Expiration Date” shall mean the earlier of (i) the date Tenant commences to use the portion of the Premises rendered unusable or (ii) the date that Landlord and Tenant agree is the reasonable date that Tenant is expected to complete the balance of the restoration of the Premises (beyond the Delivery Condition to the condition existing immediately prior to the casualty) taking into consideration all relevant factors (including, but not limited to, the time and costs to perform the Initial Tenant Improvements).
| - 20 - |
(c) Landlord shall not be required to repair any damage to, or to make any repairs or replacements of, the Initial Tenant Improvements and the any other Alterations performed in the Premises by, or for the benefit of Tenant during the Term of this Lease, or to the Retained FFE or any fixtures, furniture or equipment installed in the Premises that Landlord is not otherwise required to repair or restore in order to restore the Premises to the Delivery Condition. Tenant shall be responsible to repair any damage to, or to make any repairs or replacements of, the Initial Tenant Improvements and the any other Alterations performed in the Premises by, or for the benefit of Tenant during the Term of this Lease, the Retained FFE and any fixtures, furniture or equipment installed in the Premises that Landlord is not otherwise required to repair or restore in order to restore the Premises to the Delivery Condition.
(d) Tenant waives the provisions of any statutes which relate to the termination of leases when leased property is damaged or destroyed and agrees that such event shall be governed by the terms of this Lease, and the abatement of Rent set forth above is Tenant’s exclusive remedy against Landlord in the event of any casualty.
13. SUBORDINATION. This Lease is and shall be subject and subordinate to any and all mortgages or deeds of trust now existing upon or that may be hereafter placed upon the Premises and the land and Building and to all advances made or to be made thereon and all renewals, modifications, consolidations, replacements or extensions thereof and the lien of any such mortgages, deeds of trust and land leases shall be superior to all rights hereby or hereunder vested in Tenant, to the full extent of all sums secured thereby. This provision shall be self-operative and no further instrument of subordination shall be necessary to effectuate such subordination, and the recording of any such mortgage or deed of trust shall have preference and precedence and be superior and prior in lien to this Lease, irrespective of the date of recording. To confirm such subordination, Tenant shall upon request of Landlord or the holder of any such mortgage or deed of trust execute and deliver to Landlord and any such holder within ten (10) days after any such request, any reasonable instrument that Landlord or such holder may reasonably request, including, but not limited to a subordination and attornment agreement wherein Tenant specifically agrees that its interest in the Premises is subordinate and inferior to such mortgage or deed of trust and that Tenant will attorn to the holder of such mortgage or deed of trust or any purchaser of the Building at a foreclosure sale in the event the mortgage or deed of trust is foreclosed. On the Effective Date, the Bank of America is the holder of a mortgage encumbering the Premises, Land and Building (the “BOA Mortgage”). Landlord shall use commercially reasonable efforts post Lease execution to have Bank of America enter into a subordination, non-disturbance and attornment agreement (an “SNDA”) with Tenant on the Bank of America’s customary form. With respect to any and all mortgages, or deeds of trust that may be placed upon the Premises, Land and Building which shall be subordinate to the BOA Mortgage, including any amendment, extension or other modification thereof (a “Subsequent Interest”), Landlord shall use commercially reasonable efforts to have the holder(s) of all Subsequent Interests enter into a subordination, non-disturbance and attornment agreement (an “SNDA”) with Tenant in a such holders(s) customary form. Notwithstanding anything to the contrary contained herein, Tenant shall have the right, at Tenant’s sole cost and expense, to negotiate and request changes to the BOA’s customary SNDA form, or the holder of any Subsequent Interest’s customary SNDA form. For purposes of this Section 13, “commercially reasonable efforts” shall mean that Landlord shall request that the holder(s) of any Subsequent Interest enter into and SNDA with Tenant in a such holders(s) customary form, without any obligation on Landlord to obtain such SNDA, or commence any actions or legal proceeding to compel the holder(s) of any Subsequent Interest to enter into and SNDA with Tenant.
| - 21 - |
14. SURRENDER OF PREMISES. On or before the Expiration Date, whether by forfeiture or expiration of time, Tenant shall surrender the Premises to Landlord in as good condition as when received by Tenant from Landlord on the Commencement Date with reasonable wear and tear, casualty and condemnation, and the satisfaction of Landlord’s maintenance and repair obligations excepted. On or before the Expiration Date, Tenant shall remove (i) all Tenant’s Property in accordance with the provisions of Section 16, and (ii) any Alteration to the Premises made by Tenant in accordance with the provisions of Section 22 that Landlord requires removal thereof by Tenant prior to the Expiration Date. Notwithstanding anything to the contrary contained herein, Landlord agrees that all Tenant shall have no obligation to remove any of the office or laboratory improvements located in the Premises prior to the performance of the Initial Tenant Improvements Work.
| 15. | DEFAULT BY TENANT. |
(a) The occurrence of any of the following shall constitute an Event of Default:
(i) Any installment of Base Rent or Additional Rent required to be paid by Tenant hereunder, or any part thereof shall at any time be in arrears and unpaid for five (5) days after written notice thereof; provided, however, such notice and such grace period shall be required to be provided by Landlord and shall be accorded Tenant, if necessary, only two (2) times during any twelve (12) month period, or
(ii) There is any default or breach on the part of Tenant in the observance or performance of any of the other covenants, agreements, or conditions of this Lease on the part of Tenant to be kept and performed and said default or breach shall continue for a period of thirty (30) days after written notice thereof from Landlord to Tenant (unless such default cannot reasonably be cured within thirty (30) days and in such case, Tenant shall have commenced to cure said default within said thirty (30) days and thereafter continue diligently to pursue to completion the curing of same), or
(iii) The leasehold estate hereby created shall be taken on execution or by other process of law, or
(iv) Tenant shall fail to deliver within ten (10) days after a request therefor any document described in Sections 13 or 21 hereof.
(b) If and whenever any Event of Default as defined above or elsewhere in this Lease shall occur, Landlord shall have the right at its election then or at any time thereafter to pursue any one or more of the following remedies in addition to all other rights or remedies provided herein or at law or in equity:
| - 22 - |
(i) Re-enter the Premises, and take possession thereof in accordance with the process of law, and eject all parties in possession therefrom, using such force for that purpose as may be necessary, without being liable to any prosecution for said re-entry or the use of such force, and, without terminating this Lease, at any time and from time to time relet the Premises or any part thereof for the account of Tenant or otherwise, receive and collect the rents therefor, applying the same first to payment of such reasonable expenses as Landlord may have paid, assumed or incurred in recovering possession of the Premises, including, without limitation, costs, expenses and reasonable attorney's fees, brokerage and reasonable remodeling of the Premises, paid, assumed or incurred by Landlord in connection with reletting the Premises, and then to the fulfillment of the covenants of Tenant. Any such reletting as provided for herein may be for the remainder of the Term as originally granted or for a longer or shorter period. Landlord may execute any lease made pursuant to the terms hereof in Landlord's own name and Tenant shall have no right or authority whatever to collect any rent whatever from such Subtenant. In any case and whether or not the Premises or any part thereof be relet, Tenant shall pay to Landlord all sums required to be paid by Tenant up to the time of re-entry by Landlord, and thereafter Tenant shall, if required by Landlord, pay to Landlord until the end of the Term, the equivalent amount of all rent and other charges required to be paid by Tenant under the terms of this Lease, less the rent actually received by Landlord from any such reletting during the Term, if any, after payment of the expenses of Landlord as aforesaid, and the same shall be due and payable on the several rent days herein specified. No such re-entry by Landlord shall constitute an election to terminate this Lease unless and until Landlord thereafter gives Tenant written notice of Landlord's election to terminate this Lease. Actions to collect any amounts due by Tenant as provided in this Section 15 may be brought from time to time on one or more occasions without the necessity of Landlord's waiting until expiration of the Term;
(ii) Terminate this Lease, and with the process of law, expel and remove Tenant, or any other person or persons in occupancy from the Premises, together with their goods and chattels, using such force as may be necessary in the judgment of Landlord or its agents in so doing, and repossess and enjoy said Premises together with all improvements, additions, alterations, equipment and fixtures thereon, and in addition to any other remedy it may have, Landlord may recover from Tenant all reasonable damages it may incur by reason of such breach by Tenant.
(c) Landlord shall use commercially reasonable efforts to re-let the Premises to mitigate its damages upon the occurrence of an event of default under this Lease. For the purposes hereof, “commercially reasonable efforts” shall mean the following actions, which actions shall create an irrebuttable presumption that Landlord has fulfilled such obligation: (i) Landlord shall include the availability of the Premises in Landlord’s leasing flyers sent to brokers (if any), commencing following Landlord’s recovery of possession of the Premises, and ending upon re-leasing of the Premises; and/or (ii) Landlord shall engage an independent commercial real estate broker to re-let the Premises, the cost and expense of which shall be an element of Landlord’s damages in addition to any other damages recoverable pursuant to this Lease. Nothing contained herein shall require Landlord to re-let the Premises prior to or with any preference over the leasing of any other similar premises of Landlord in the Project.
| - 23 - |
(d) Notwithstanding anything in this Lease to the contract, neither party shall be responsible or liable to the other for any special, indirect, or consequential damages (other than Tenant’s liability expressly described in Section 17 below if Tenant holds over). In addition, Landlord waives its right to distraint on Tenant’s Property, whether under common law or otherwise.
16. TENANT'S PROPERTY. Upon termination of this Lease by expiration of time or otherwise, Tenant shall remove all of its furniture, furnishings, trade fixtures, equipment (including, without limitation the Retained FFE if Landlord has transferred same to Tenant in accordance with the terms of this Lease) and personal property (collectively, the “Tenant’s Property”) from the Premises. Tenant shall be obligated to repair any damage to the Premises, Building and Common Areas caused by such removal.
17. HOLDING OVER In the event Tenant remains in possession of the Premises after termination of this Lease, such holding over shall not be deemed to extend the Term and Tenant shall be deemed to be occupying the Premises as a holdover Tenant, at a Rent equal to (i) one and one half (1.5) times the Base Rent for the last month prior to the expiration of the Term for the first calendar month or portion thereof that Tenant holds over, and (ii) two (2) times the Base Rent for the last month prior to the expiration of the Term for each calendar month or portion thereof after the first calendar month that Tenant holds over, subject to all the other conditions, provisions and obligations of this Lease. The parties recognize and agree that the damage to Landlord resulting from any failure by Tenant to timely surrender possession of the Premises will be extremely substantial, will exceed the amount of the monthly Base Rent payable hereunder and will be impossible to accurately measure. If the Premises are not surrendered upon the expiration of this Lease, Tenant shall indemnify, defend and hold harmless Landlord against any and all losses and liabilities resulting therefrom, including, without limitation, any claims made by any succeeding tenant founded upon such delay. Nothing contained in this Lease shall be construed as a consent by Landlord to the occupancy or possession by Tenant of the Premises beyond the Expiration Date, and Landlord, upon said Expiration Date, shall be entitled to the benefit of all legal remedies that now may be in force or may be hereafter enacted relating to the immediate repossession of the Premises. The provisions of this Section 17 shall survive the expiration or sooner termination of this Lease.
| - 24 - |
| 18. | SECURITY DEPOSIT |
(a) Within fifteen (15) days after the execution and delivery of this Lease by both parties, Tenant shall deposit with Landlord a one (1) year, irrevocable unconditional letter of credit issued by an Approved Bank for the benefit of Landlord in the amount of Five Hundred Eighty-Six Thousand and 00/100 Dollars ($586,000.00) (collectively, the “Security Deposit”), containing (i) an “evergreen clause” providing that it shall automatically renew as of its initial and each subsequent expiry date unless the issuing bank gives Landlord written notice of the non-renewal at least sixty (60) days prior to the then applicable expiry date, (ii) a provision obligating the issuing bank to issue a new letter of credit, without charge to Landlord, to any assignee of Landlord’s interest under the Lease, provided the original is returned to the issuing bank and any other reasonable requirements of the issuing bank are satisfied by Tenant , (iii) a provision stating that the letter of credit shall not in any way be modified or amended without Landlord’s prior written consent, and (iv) such other commercially reasonable provisions as Landlord may require from time to time. The face amount of the original letter of credit and any replacement letter of credit delivered to Landlord shall be equal to the amount of the Security Deposit then required under this Section 18. The Security Deposit shall be held by Landlord as security for the full and faithful performance by Tenant of the terms and conditions by it to be observed and performed hereunder. If any Base Rent, Additional Rent or other sum payable by Tenant to Landlord becomes overdue and remains unpaid, or should Landlord make any payments on behalf of Tenant in accordance with the terms of this Lease, or should Tenant fail to perform any of the terms and conditions of this Lease after notice and the expiration of any applicable cure period, then Landlord, at its option, and without prejudice to any other remedy which Landlord may have on account thereof, shall appropriate and apply the Security Deposit toward the payment of Base Rent, Additional Rent or other such sum payable hereunder, or loss or damage sustained by Landlord due to the breach or failure to perform on the part of Tenant. For purposes of this Lease, “Approved Bank” shall mean any commercial bank having an office within the New York City/New Jersey metropolitan area which is rated A or better by Standard & Poor’s or any successor thereto (or having a comparable rating issued by another reputable and comparable rating agency if Standard & Poor’s or any successor thereto no longer exists or no longer publishes such ratings). The Security Deposit shall be held by Landlord without liability for interest and it is expressly understood that the Security Deposit shall not be considered an advance payment of rental or a measure of Landlord's damages in case of default by Tenant. Landlord may commingle the Security Deposit with Landlord's other funds.
(b) Conditioned upon the full compliance by Tenant of all of the terms of this Lease (including, without limitation, leaving the Premises in the condition required on the Expiration Date) and the prompt payment of all sums due hereunder, as and when they fall due, the Security Deposit (or the unapplied portion thereof) shall be returned in full to Tenant within forty five (45) days after the Expiration Date. Landlord's obligations under this Section 18(b) shall survive the expiration or earlier termination of the Term.
(c) In the event of bankruptcy or other debtor-creditor proceeding against Tenant, the Security Deposit shall be deemed to be applied first to the payment of rent and other charges then due and owing Landlord for all periods prior to filing of such proceedings.
(d) In the event of any transfer or any assignment of Landlord’s interest under this Lease, Landlord shall have the right to transfer the Security Deposit to said transferee or assignee, and Landlord shall thereupon be automatically released from all liability for the return of the Security Deposit provided that the transferee or assignee has assumed in writing all of Landlord’s obligations under this Lease, including the return of the Security Deposit , which arise from and after the date of the transfer or assignment. In such event, Tenant agrees to look to the new lessor for the return of the Security Deposit. Landlord shall furnish Tenant with an executed copy of any such assumption agreement. It is hereby agreed that the provisions of this Section shall apply to every transfer or assignment made of the Security Deposit to a new lessor.
| - 25 - |
(e) Upon the occurrence of a default by Tenant under this Lease after notice and the expiration of any applicable cure period, Landlord shall have the right to draw down the letter of credit for any of the reasons set forth in this Section 18 for the application of Security Deposit. To exercise such right, (i) Landlord shall present the letter of credit to the issuing bank at the office set forth on the letter of credit and (ii) Landlord shall deliver to the issuing bank a statement from Landlord setting forth the amount of the draw and stating that Landlord is entitled to draw down the letter of credit pursuant to the provisions of Section 18 of this Lease. Landlord shall apply the proceeds thereof towards the payment of the Base Rent, Additional Rent or such other sum payable hereunder, or any payments made by Landlord on behalf of Tenant, or any loss or damage sustained by Landlord due to the breach or failure to perform on the part of Tenant, and Landlord shall hold the balance, if any, pursuant to the provisions of this Section 18. Within ten (10) Business Days after demand, Tenant shall deposit with Landlord an amount (in the form of a replacement letter of credit) equal to the portion of the Security Deposit applied pursuant to the provisions of the immediately preceding sentence and if Tenant shall provide a replacement letter of credit for the full amount of the Security Deposit, Landlord shall return to Tenant the balance of any cash then being held by Landlord in accordance with Section 18 above within ten (10) Business Days after Landlord’s receipt of such replacement letter of credit.
(f) Notwithstanding anything to the contrary contained herein, Tenant hereby expressly acknowledges that the drawing down of said letter of credit shall not operate as a waiver of or preclude Landlord from exercising any of Landlord’s other rights and remedies under this Lease. In addition, Tenant hereby agrees that Landlord shall not be required to give Tenant any prior notice of the drawing down of the letter of credit.
(g) In the event of an assignment of this Lease by Landlord, Tenant shall, at Tenant’s sole cost and expense, obtain either (i) a new letter of credit from the issuing bank containing the same terms and for the same face amount as the letter of credit then held by Landlord which names the new lessor as the beneficiary or (ii) the written consent of the issuing bank to the assignment of the then existing letter of credit from Landlord to the new lessor in the same form and substance, provided the bank’s transfer forms are properly completed and delivered. If Tenant obtains a new letter of credit, Landlord shall surrender the existing letter of credit to the issuing bank in conjunction with the delivery of the new letter by the issuing bank and the parties agree to coordinate such delivery and surrender so that it is done on the effective date of the assignment of this Lease by Landlord.
| - 26 - |
(h) Notwithstanding anything to the contrary contained herein: (i) the original amount of the Security Deposit ($586,000.00) shall be reduced by $100,000.00, so that the amount of the Security Deposit shall be $486,000.00 as of the first (1st) anniversary of the Rent Commencement Date, provided no Event of Default of a monetary nature which has not been cured in accordance with the Cure Period, as defined below, shall have occurred during the period beginning on the Effective Date and ending on the first (1st) anniversary of the Rent Commencement Date (the “Initial Security Period”); (ii) if the amount of the Security Deposit has been reduced in accordance with the terms of this Section 18(h) after the Initial Security Period, the amount of the Security Deposit shall be further reduced from the then reduced amount of the Security Deposit ($486,000.00) by $100,000.00, so that the amount of the Security Deposit shall be $386,000.00 as of the second (2nd) anniversary of the Rent Commencement Date, provided no Event of Default of a monetary nature shall have occurred which has not been cured, in accordance with the Cure Period as defined below, during the period beginning on the first (1st) anniversary of the Rent Commencement Date and ending on the second (2nd) anniversary of the Rent Commencement Date (the “Second Security Period”); (iii) if the amount of the Security Deposit has been reduced in accordance with the terms of this Section 18(h) after the Second Security Period, the amount of the Security Deposit shall be further reduced from the then reduced amount of the Security Deposit ($386,000.00) by $100,000.00, so that the amount of the Security Deposit shall be $286,000.00 as of the third (3rd) anniversary of the Rent Commencement Date, provided no Event of Default of a monetary nature shall have occurred which has not been cured, in accordance with the Cure Period as defined below, during the period beginning on the second (2nd ) anniversary of the Rent Commencement Date and ending on the third (3rd ) anniversary of the Rent Commencement Date (the “Third Security Period”); and (iv) if the amount of the Security Deposit has been reduced in accordance with the terms of this Section 18(h) after the Third Security Period, the amount of the Security Deposit shall be further reduced from the then reduced amount of the Security Deposit ($286,000.00) by $86,000.00, so that the amount of the Security Deposit shall be $200,000.00 as of the fourth (4th ) anniversary of the Rent Commencement Date provided no Event of Default of a monetary nature shall have occurred which has not been cured, in accordance with the Cure Period as defined below, during the period beginning on the third (3rd ) anniversary of the Rent Commencement Date and ending on the fourth (4th ) anniversary of the Rent Commencement Date (the “Fourth Security Period”). If an Event of Default of a monetary nature shall occur during the Initial Security Period, or during the Second Security Period, Third Security Period, or Fourth Security Period, as the case may be, then the amount of the Security Deposit shall only be reduced by the scheduled amount after such Event of Default of a monetary nature is cured. In order for an Event of Default of a monetary nature to have occurred under the Lease negating Tenant’s right to a reduction in the Security Deposit during the Initial Security Period, the Second Security Period, Third Security Period, or Fourth Security Period, as the case may be, Landlord must have provided to Tenant a notice describing the monetary Event of Default and Tenant shall not have cured such Event of Default of a monetary nature within five (5) Business Days from receipt of the notice, (the “Cure Period”).
19. FORCE MAJEURE Except to the extent expressly set forth herein, in no event shall either party by deemed to be in default of its non-monetary obligations hereunder to the extent such party is prevented from or delayed in performing such non-monetary obligation by reason of acts of God, fire, earthquake, flood, explosion, action of the elements, war, hostilities, invasion, acts of terrorism, insurrection, riot, mob violence, sabotage, reasonably unforeseen governmental regulation, unusual scarcity of or inability to obtain labor or materials, labor difficulties, or other causes reasonably beyond such party’s control (“Force Majeure”).
| - 27 - |
| 20. | INTENTIONALLY DELETED |
21. ESTOPPEL CERTIFICATES. Tenant shall, within ten (10) days after written request from Landlord, execute, acknowledge, and deliver to Landlord or to Landlord's mortgagee, proposed mortgagee, land lessor or proposed purchaser of the Building or any part thereof, any estoppel certificates reasonably requested by Landlord, from time to time, which estoppel certificates shall show, among other things, whether the Lease is in full force and effect and whether any changes may have been made to the original Lease; whether the Term of the Lease has commenced and full rental is accruing; whether there are, to the actual knowledge of Tenant, any defaults by Landlord and, if so, the nature of such defaults, whether possession has been assumed and all improvements to be provided by Landlord have been completed; whether rent has been paid more than thirty (30) days in advance and that there are no liens, charges, or offsets against rental due or to become due.
| 22. | ALTERATIONS OR IMPROVEMENTS BY TENANT. |
(a) Except for minor Alterations (as defined below), Tenant may, from time to time, at its expense, make alterations or improvements and install any Tenant’s Property, in and to the Premises (hereinafter collectively referred to as “Alterations”) provided that Tenant first obtains the written consent of Landlord, which consent shall not be unreasonably withheld, delayed or conditioned; and provided further that all of the following shall apply with respect to all Alterations: (1) the Alterations shall be of a non-structural nature and the structural integrity of the Building shall not be affected; (2) the Alterations shall only be to the interior of the Premises; (3) the proper functioning of the HVAC, sanitary and other Building Systems shall not be affected and the usage of such systems by Tenant shall not be increased; and (4) Tenant shall have appropriate insurance coverage, reasonably satisfactory to Landlord, regarding the performance and installation of the Alterations. Additionally, before proceeding with any Alterations, Tenant shall (i) at Tenant’s expense, obtain all necessary governmental permits and certificates for the commencement and prosecution of Alterations; (ii) submit to Landlord, for its written approval, working drawings, plans and specifications and all permits for the work to be done and Tenant shall not proceed with such Alterations until it has received Landlord’s approval (which consent shall not be unreasonably withheld, delayed or conditioned); and (iii) cause those contractors, materialmen and suppliers engaged to perform the Alterations to deliver to Landlord certificates of insurance (in a form and content reasonably acceptable to Landlord) evidencing policies of commercial general liability insurance (providing the same coverages as required in Section 8 above) and workers’ compensation insurance. The term “Minor Alterations” means (a) cosmetic and non-structural Alterations to the Premises, which (i) do not affect any Building systems, structure, or areas outside of the Premises and (ii) the cost of which, in the aggregate, during any twelve (12)-month period during the Lease Term do not exceed $25,000.00. Tenant may make Minor Alterations without Landlord’s consent, but upon not less than ten (10) Business Days prior written notice to Landlord.
| - 28 - |
(b) With respect to those Alterations requiring Landlord’s prior consent, Tenant shall cause the Alterations to be performed in compliance with all applicable permits, Laws, requirements of public authorities, plans and specifications and with Landlord’s Rules and Regulations and any other reasonable requirements that Landlord may impose on the Alterations. With respect to those Alterations requiring Landlord’s prior consent, Tenant shall cause the Alterations to be diligently performed in a good and workmanlike manner, using new materials and equipment at least equal in quality and class to the standards for the Building established by Landlord, and shall cause all Alterations to be paid for in full free and clear of all construction and any and all other liens and encumbrances. Tenant shall provide Landlord with “as built” plans, copies of all construction contracts, governmental permits and certificates and proof of payment for all labor and materials, including, without limitation, copies of paid invoices and final lien waivers. Landlord and Landlord’s representatives shall have the right, without the obligation, from time to time, to enter upon the Premises during the course of the performance of the Alterations, and upon completion of the Alterations, to observe and inspect the Alterations; however, by doing so, Landlord shall not be deemed to have passed upon the performance of the Alterations nor assumed any liability or responsibility with respect thereto. Landlord shall have the right, as hereinafter set forth, to require Tenant to remove any Specialty Installations (as hereinafter defined) made by Tenant before the expiration or termination of the Lease, at Tenant’s sole cost and expense. If Landlord provides its written consent, at the time of giving such consent, to the extent the Alteration includes any “Specialty Installation” (as defined herein), Landlord shall advise Tenant whether Landlord will require such Specialty Installation or Specialty Installations to be removed at the expiration or earlier termination of this Lease. As used in this Lease the term “Specialty Installation” means any Alteration, fixture or equipment made or installed by Tenant or Tenant’s Agents that is intended specifically for the use of Tenant or Tenant’s operations in the Premises and is not readily marketable or reusable by another office, laboratory, R&D, or general use tenant in the Premises and specifically shall include items which require special governmental permits, approvals, or consents for the installation or removal of same..
(c) Tenant shall have the right to place and install Tenant’s Property in and upon the Premises, and fasten the same to the Premises. All Tenant’s Property whether acquired by Tenant at the commencement of the Term or placed or installed on the Premises by Tenant thereafter, shall remain Tenant's Property. Tenant shall have the right to remove the same at any time during the Term of this Lease (and Tenant shall remove all such Tenant’s Property on or before the Expiration Date), provided that all damage to the Premises, Building and Common Areas caused by such removal shall be repaired by Tenant at Tenant's sole cost and expense.
| - 29 - |
23. ACCESS TO PREMISES. Landlord and Landlord’s agents shall have the right to enter the Premises during Business Hours for the purpose of inspecting the same, for the purpose of maintenance, repair, and for making additions to and running pipes, conduits and ducts through the Premises and for showing the Premises to prospective tenants, purchasers and lenders, and Tenant hereby waives any claim against Landlord for damage or inconvenience caused by any of the above. Except in the case of an emergency (in which case no prior notice and no Tenant Representative, as hereinafter defined, shall be required), Landlord shall give Tenant not less than 24 hour advance notice of Landlord’s intent to enter the Premises and Landlord shall use commercially reasonable efforts to minimize the interference with Tenant’s operations during the exercise of Landlord’s rights under this Section 23, but Landlord shall not be required to use after hours labor. Notwithstanding the foregoing to the contrary, Landlord shall not be required to enter only during Business Hours in the event Landlord, in its good faith judgment, believes it would be injured by failure to take rapid action or if the necessity for repairs constitutes an emergency. Except as otherwise expressly provided for in this Section 23, Tenant does not want Landlord to have the right to enter the Premises unattended, therefore the Tenant shall provide a representative of Tenant (a “Tenant Representative”) to accompany Landlord’s agents at all times set forth in the Landlord’s advance notice of Landlord’s intent to enter the Premises and at all times during the exercise of Landlord’s rights under this Section 23.
| 24. | PARKING. |
(a) Subject to the Rules and Regulations attached hereto as Exhibit “J” as same may be modified by Landlord from time to time during the Term, Tenant shall have the right to use twenty-eight (28) non-exclusive parking spaces in the parking garage or the surface parking lots (as designated by Landlord) located in the Project for non-commercial vehicles in common with other tenants of the property.
(b) Landlord reserves the right at any time, on at least 15 days prior notice (except in the case of an emergency, in which case no notice shall be necessary), to (i) permanently relocate all or any portion of the parking garage spaces, or the surface parking lot spaces, as the case may be, in Landlord’s sole discretion, and/or (ii) temporarily relocate all or any portion of the parking garage spaces or the surface parking lot spaces in case of emergencies or the repair or maintenance of same. If Tenant commits or allows any of the activities prohibited by this Lease or the Rules and Regulations in connection with its use of the non-exclusive parking spaces, then Landlord shall have the right, following such notice to Tenant, whether written or oral, as is reasonable under the circumstances, in addition to such other rights and remedies that Landlord may have, to remove or tow away the vehicle(s) involved and charge the cost to Tenant, which cost shall be immediately payable by Tenant upon demand by Landlord. Tenant’s parking rights are appurtenant to the Lease and Tenant may only transfer, assign, or otherwise convey its parking rights together with a transfer, assignment, or conveyance of this Lease as otherwise provided in this Lease.
25. PARTIAL INVALIDITY. If any term, covenant or condition of this Lease or the application thereof to any person or circumstance shall to any extent be invalid or unenforceable, the remainder of this Lease or the application of such term, covenant or condition of this Lease shall be valid and enforceable to the fullest extent permitted by law.
26. LEASE BINDING UPON ASSIGNEES. This Lease and all covenants, provisions and conditions herein contained shall inure to the benefit of and be binding upon the heirs, executors, administrators, personal representatives, successors and assigns, respectively of the parties hereto; provided, however, that no sublease, assignment or transfer by, from, through or under Tenant in violation of the provisions hereof shall vest in the subtenant, assignee or transferee any right, title or interest whatever.
| - 30 - |
27. LIMITATION OF LANDLORD'S LIABILITY. Anything in the Lease to the contrary notwithstanding, no recourse or relief shall be had under any rule of law, statute or constitution or by any enforcement of any assessments or penalties, or otherwise or based on or in respect of this Lease (whether by breach of any obligation, monetary or non-monetary), against Landlord, it being expressly understood that all obligations of Landlord under or relating to this Lease are solely obligations payable out of Landlord’s interest in the Building and are compensable solely therefrom. It is expressly understood that all such liability is and is being expressly waived and released as a condition of and as a condition for the execution of this Lease, and Tenant expressly waives and releases all such liability as a condition of, and as a consideration for, the execution of this Lease by Landlord.
28. WAIVER. The failure of Landlord or Tenant to insist in any one or more cases upon the strict performance or observance of any of the covenants, agreements or conditions of this Lease or to exercise any option herein contained shall not be construed as a waiver or a relinquishment for the future performance, observance or exercise of such covenant, agreement, condition or option. No waiver of any default hereunder shall be implied from any omission by Landlord or Tenant to take any action on account of such default, and no condition or covenant shall be deemed waived by Landlord or Tenant unless such waiver is in writing signed by the waiving party. One or more waivers of any breach of any covenant, term or condition of this Lease by Landlord or Tenant shall not be construed as a waiver of any subsequent breach of the same covenant, term or condition.
29. ASSIGNMENT AND SUBLETTING. (a) Except as otherwise expressly permitted in this Section 29, Tenant shall not sell, assign, transfer, hypothecate, mortgage, encumber, grant concessions or licenses, sublet, or otherwise dispose of any interest in this Lease or the Premises, by operation of law or otherwise, without the prior written consent of Landlord., which consent shall not be unreasonable withheld, delayed or conditioned. Any consent granted by Landlord in any instance shall not be construed to constitute a consent with respect to any other instance or request. If the Premises or any part thereof should be sublet, used, or occupied by anyone other than Tenant, or if this Lease should be assigned by Tenant, Landlord shall have the right to collect rent from the assignee, subtenant, user or occupant, but no such assignment, subletting, use, occupancy or collection shall be deemed a waiver of any of Landlord’s rights under the provisions of this Section, a waiver of any of Tenant’s covenants contained in this Section, the acceptance of the assignee, subtenant, user or occupant as tenant, or a release of Tenant from further performance by Tenant of Tenant’s obligations under the Lease.
(a) If Tenant shall desire to sublet the Premises or to assign this Lease, it shall first submit to Landlord a written notice (“Tenant’s Notice”) setting forth in reasonable detail:
| - 31 - |
(i) the name and address of the proposed subtenant or assignee;
(ii) the terms and conditions of the proposed subletting or assignment (including the proposed commencement date of the sublease or the effective date of the assignment, which shall be at least thirty (30) days after Tenant’s Notice is given);
(iii) the nature and character of the business of the proposed subtenant or assignee;
(iv) banking, financial, and other credit information relating to the proposed subtenant or assignee, in reasonably sufficient detail, to enable Landlord to determine the proposed subtenant's or assignee's financial responsibility; and
(v) in the case of a subletting, complete plans and specifications for any and all work to be done in the Premises to be sublet.
(b) Within thirty (30) days after Landlord’s receipt of Tenant’s Notice, Landlord agrees that it shall notify Tenant whether Landlord (i) consents to the proposed sublet or assignment, (ii) does not consent to the proposed sublet or assignment, (iii) elects to exercise its recapture right, as described in Section (e) below, or (iv) requires further information consistent with the information to be furnished as part of Tenant's Notice. In the event Landlord does not elect to exercise its recapture right, then Landlord agrees not to unreasonably withhold, delay or condition its consent to the proposed sublet or assignment.
(c) In addition to the foregoing requirements,
(i) no assignment or sublease shall be permitted if, at the effective date of such assignment or sublease, an Event of Default exists under this Lease;
(ii) no assignment or sublease shall be permitted unless Tenant agrees, at the time of the proposed assignment or sublease and in Tenant’s Notice, to pay to Landlord, immediately upon receipt thereof, fifty percent (50%) of all Net Rental Proceeds, of whatever nature, payable by the prospective assignee or subtenant to Tenant pursuant to such assignment or sublease. For purposes of this Lease, “Net Rental Proceeds” shall mean: in the case of a sublease, the amount by which the aggregate of all rents, additional charges or other consideration payable under a sublease to Tenant by the subtenant (including sums paid for the sale or rental of Tenant’s fixtures, leasehold improvements, equipment, furniture or other personal property) exceeds the sum of (i) the Base Rent plus all amounts payable by Tenant pursuant to the provisions hereof during the term of the sublease in respect of the subleased space, (ii) brokerage commissions at prevailing rates due and owing to a real estate brokerage firm, and (iii) other customary and reasonable costs incurred by Tenant in connection with the subleasing; and in the case of an assignment, the amount by which all sums and other considerations paid to Tenant by the assignee of this Lease for or by reason of such assignment (including sums paid for the sale of Tenant’s fixtures, leasehold improvements, equipment, furniture or other personal property) exceeds the sum of (i) brokerage commissions at prevailing rates due and owing to a real estate brokerage firm, and (ii) other customary and reasonable costs incurred by Tenant in connection with the assignment. Notwithstanding the foregoing, for purposes of determining Net Rental Proceeds, Landlord and Tenant agree that amounts attributable to business goodwill or the sale of the business, stock, or assets of Tenant shall not be included in this calculation only to the extent that allocation of the costs for such items do not materially exceed the actual value attributable to such items.
| - 32 - |
(iii) no assignment or sublease shall be permitted to any existing tenant or occupant in the Building or Project, if Landlord has comparable space available for leasing in the Project;
(iv) no sublease or assignment shall be permitted if the proposed subtenant’s or assignee’s use of the Premises: (i) is a Prohibited Use shown on Exhibit “O” (as same may be further supplemented and amended by Landlord from time to time during the Term), (ii) is for any use other than the Permitted Use, (iii) would cause Landlord to be in violation of its obligations under another lease or agreement in connection with the Project to which Landlord is a party, including, without limitation any exclusive or restrictions granted to any tenant or occupant pursuant to a lease or other agreement entered into prior to Tenant’s request for Landlord’s consent, (iv) is not consistent with Landlord’s operation of the Project as a first class research and development project including general office use, or (v) violates the Condominium Documents;
(v) no sublease or assignment shall be permitted if, in Landlord’s reasonable business judgment, the proposed subtenant or assignee lacks sufficient business reputation or experience to operate a successful business of the type and quality permitted under this Lease;
(vi) no sublease or assignment shall be permitted if, in Landlord’s reasonable business judgment, the present net worth of the proposed subtenant or assignee is insufficient to satisfy the outstanding obligations under this Lease with respect to the assignment or sublease;
(vii) no sublease or assignment shall be permitted if the assignment or sublease would breach any covenant of Landlord respecting use or exclusivity in any lease, financing agreement or other agreement relating to the Project and Landlord evidences the same; and
(viii) no sublease or assignment shall be permitted to any prospective tenant of the Building or the Project who has been shown space in the Building for lease during the six (6) months prior to the Tenant’s request for consent if Landlord has comparable space available for leasing in the Project.
| - 33 - |
(d) Landlord shall have the right, to be exercised by giving written notice (the “Recapture Notice”) to Tenant within thirty (30) days after receipt of Tenant’s Notice, to recapture the space described in Tenant’s Notice (the “Recapture Space”). The Recapture Notice shall cancel and terminate this Lease with respect to the Recapture Space as of the date stated in Tenant’s Notice for the commencement of the proposed assignment or sublease as fully and completely as if that date had been herein definitively fixed as the Expiration Date, and Tenant shall surrender possession of the Recapture Space as of such date. Thereafter, the Base Rent and Additional Rent shall be equitably adjusted based upon the square footage of the Premises then remaining, after deducting the square footage attributable to the Recapture Space. In the event Landlord elects to exercise its recapture right and the Recapture Space is less than the entire Premises, then Landlord, at its sole expense, shall have the right to make any alterations to the Premises required, in Landlord’s reasonable judgment, to make such Recapture Space a self-contained rental unit. Landlord agrees to perform all such work, if any, with as little inconvenience to Tenant’s business as is reasonably possible; provided, however, Landlord shall not be required to perform such work after normal business hours or on weekends; and provided further, Landlord shall not be deemed guilty of an eviction, partial eviction, constructive eviction or disturbance of Tenant’s use or possession of the Premises, and shall not be liable to Tenant for same. Notwithstanding anything to the contrary contained in the Section 29(d), Landlord shall not have the right to recapture the Recapture Space if; (i) the Recapture Space being sublet consists of 1,434 rentable square feet or less, and the term of such sublease shall expire no later than twelve (12) months prior to the Expiration Date (not including any unexercised option(s) to extend the Term), or (ii) the proposed assignee or subtenant is a Related Entity or Successor Entity, as the case may be.
(e) In addition to the foregoing requirements, any sublease must contain the following provisions:
(i) the sublease shall be subject and subordinate to all of the terms and conditions of this Lease;
(ii) at Landlord’s option, in the event of cancellation or termination of this Lease for any reason or the surrender of this Lease, whether voluntarily, involuntarily, or by operation of law, prior to the expiration of such sublease, including extensions and renewals of such sublease, the subtenant shall make full and complete attornment to Landlord for the balance of the term of the sublease. The attornment shall be evidenced by an agreement in form and substance satisfactory to Landlord which the subtenant shall execute and deliver at any time within five (5) days after request by Landlord or its successors and assigns;
(iii) the term of the sublease shall not extend beyond a date which is one day prior to the Termination Date;
(iv) no subtenant shall be permitted to further sublet all or any portion of the subleased space or to assign its sublease without Landlord’s prior written consent; and
(v) the subtenant shall waive the provisions of any law now or subsequently in effect which may give the subtenant any right of election to terminate the sublease or to surrender possession of the space subleased in the event that any proceeding is brought by Landlord to terminate this Lease.
(f) Each of the following events shall be deemed to constitute an assignment of this Lease and each shall require the prior written consent of Landlord:
| - 34 - |
(i) any assignment or transfer of this Lease by operation of law; or
(ii) any hypothecation, pledge, or collateral assignment of this Lease; or
(iii) any involuntary assignment or transfer of this Lease in connection with bankruptcy, insolvency, receivership, or similar proceeding; or
(iv) any assignment, transfer, disposition, sale or acquisition of a controlling interest in Tenant to or by any person, entity, or group of related persons or affiliated entities, whether in a single transaction or in a series of related or unrelated transactions; or
(v) any issuance of an interest or interests in Tenant (whether stock, partnership interests, or otherwise) to any person, entity, or group of related persons or affiliated entities, whether in a single transaction or in a series of related or unrelated transactions, which results in such person, entity, or group holding a controlling interest in Tenant. For purposes of the immediately foregoing, a “controlling interest” of Tenant shall mean 50% or more of the aggregate issued and outstanding equitable interests (whether stock, partnership interests, membership interests or otherwise) of Tenant.
(g) It is a further condition to the effectiveness of any assignment otherwise complying with this Section that the assignee execute, acknowledge, and deliver to Landlord an agreement in form and substance reasonably satisfactory to Landlord whereby the assignee assumes all of the obligations of Tenant under this Lease and agrees that the provisions of this Section shall continue to be binding upon it with respect to all future assignments and deemed assignments of this Lease.
(h) No assignment of this Lease nor any sublease of all or any portion of the Premises shall release or discharge Tenant from any liability, whether past, present, or future, under this Lease and Tenant shall continue to remain primarily liable under this Lease.
(i) Tenant shall be responsible for obtaining all permits and approvals required by any governmental or quasi-governmental agency in connection with any assignment of this Lease or any subletting of the Premises, and Tenant shall deliver copies of these documents to Landlord prior to the commencement of any work, if work is to be done. Tenant is also responsible for and is required to reimburse Landlord within thirty (30) days following Tenant’s receipt of Landlord’s invoice for all reasonable out-of-pocket fees, costs and expenses, including, but not limited to, reasonable attorneys' fees and disbursements, which Landlord reasonably incurs in reviewing any proposed assignment of this Lease, any proposed sublease of the Premises, and any permits, approvals, and applications for construction within the Premises.
(j) (i) Tenant agrees that under no circumstances shall Landlord be liable in damages or subject to liability by reason of Landlord’s failure or refusal to grant its consent to any proposed assignment of this Lease or subletting of the Premises, and Tenant’s sole remedy shall be limited to expedited arbitration in accordance with the terms of Section 29 (j)(ii) below. If Landlord withholds its consent of any proposed assignment or sublease, Tenant shall defend, indemnify, and hold Landlord harmless from and reimburse Landlord for all liability, damages, costs, fees, expenses, penalties, and charges (including, but not limited to, reasonable attorneys' fees and disbursements) arising out of any claims that may be made against Landlord by any brokers or other persons claiming a commission or similar compensation in connection with the proposed assignment or sublease.
| - 35 - |
(ii) Tenant agrees that under no circumstances shall Landlord be liable in damages or subject to liability by reason of Landlord’s failure or refusal to grant its consent to any proposed assignment of this Lease or subletting of the Premises. In the event Tenant believes, in good faith, that Landlord has unreasonably withheld its consent to any proposed assignment of this Lease or subletting of the Premises, then Tenant shall elect to have the question of reasonableness determined under the Expedited Procedures provisions of the Commercial Arbitration Rules and Mediation Procedures (including procedures for large complex commercial disputes) (Rules E-1 through E-10 as of the date hereof) of the American Arbitration Association (or any successor thereto), subject, however, to the following modifications: (i) Landlord and Tenant hereby request that a list of proposed arbitrators be sent under the provisions of Rule E-4(a); (ii) each arbitrator on the list of proposed arbitrators shall be currently working in the field of commercial real estate and shall have at least ten (10) years’ experience in the leasing of commercial real estate in the State of New Jersey; (iii) the list of arbitrators referred to in Rule E-4(b) shall be returnable to the American Arbitration Association (or any successor thereto) within five (5) business days from the date of receipt of the list by the addressee; (iv) under the provisions of Rule E-4(c), the parties shall have five (5) business days after being notified of the appointed arbitrator to notify (by telephone) the American Arbitration Association (or any successor thereto) of any objection to said arbitrator, provided that such right to object shall be deemed waived if the arbitrator so appointed was on the list submitted by the American Arbitration Association (or any successor thereto), and Landlord or Tenant, whichever the case may be, did not object to such arbitrator in accordance with the procedures of Rule E-4(c); (v) the American Arbitration Association (or any successor thereto) shall notify the parties of the hearing at least five (5) business days in advance thereof; (vi) the hearing shall be held within ten (10) business days after the appointment of the arbitrator; (vii) the arbitrator shall only decide the issue of whether Landlord unreasonably withheld its consent to the proposed assignment of this Lease or the proposed subletting of the Premises, and shall not have any right to award any monetary damages; and (viii) the arbitrator's compensation, the administrative charges and the filing fees incurred in connection with the arbitration shall be paid by Landlord if the arbitrator determines that Landlord unreasonably withheld its consent or by Tenant if the arbitrator determines that Landlord did not unreasonably withhold its consent. In the event the arbitrator determines that Landlord unreasonably withheld its consent to the proposed assignment of this Lease or the subletting of the Premises, then Landlord shall consent thereto.
| - 36 - |
(k) Notwithstanding anything to the contrary contained herein, provided Tenant is not in default, after notice and the expiration of any applicable cure period at the time Tenant gives Landlord the RE Notice (as hereafter defined), Tenant, without Landlord’s prior consent, but upon not less that fifteen (15) days’ prior notice to Landlord (or within fifteen (15) days following the effective date of the applicable transfer if disclosure is not permitted due to the transfer’s confidential nature), (the “RE Notice”) may (i) assign this Lease to, or sublet all or part of the Premises to, or permit a portion of the Premises to be occupied by, any corporation or other business entity which controls, is controlled by, or is under common control with Tenant ( a "Related Entity") and (ii) assign this Lease and the leasehold estate hereby created to a successor entity of Tenant (a “Successor Entity”). A Successor Entity, as used in this Lease, shall mean (w) a corporation or other business entity into which or with which Tenant, its successors or assigns, is merged or consolidated, in accordance with applicable statutory provisions for the merger or consolidation of corporations, provided that by operation of law or by effective provisions contained in the instruments of merger or consolidation, the liabilities of the corporations or other business entities participating in such merger or consolidation are assumed by the corporation or other business entity surviving such merger or consolidation, or (x) a corporation or other business entity acquiring all or substantially all of the assets or outstanding shares of stock of Tenant, its corporate successors or assigns, including the leasehold estate created by this Lease, and assuming the obligations of Tenant under this Lease, (y) any corporate successor or other business entity successor to a successor entity becoming such by either of the methods described in subdivisions (x) and (y) above; provided that (1) such merger or consolidation, or such acquisition and assumption, as the case may be, is not principally for the purpose of transferring the leasehold estate created hereby, and (2) immediately after giving effect to any such merger or consolidation, or such acquisition and assumption, as the case may be, the successor corporation surviving such merger or created by such consolidation or acquiring such assets and assuming such liabilities as the case may be, shall have a net worth, as determined in accordance with generally accepted accounting principles consistently applied, equal to or greater than the net worth of Tenant immediately preceding such merger, consolidation or acquisition, or (z) any other entity which acquires all or substantially all of the interests in Tenant or in the assets of the business operation of Tenant being conducted at the Premises or any other entity which forms a joint venture or other business arrangement with Tenant to acquire all or substantially all of the interests in Tenant or in the assets of the business operation of Tenant being conducted within the Premises. Any assignment, subletting or occupancy by a Related Entity of Tenant or a Successor Entity of Tenant shall not be deemed to relieve, release, impair or discharge any of Tenant's obligations hereunder. For the purposes hereof, "control" shall be deemed to mean possession, directly or indirectly, of the power to direct or cause the direction of the management and policies of such corporation or other business entity, through the ownership of voting securities, by contract, or otherwise. Landlord acknowledges that the Premises may be occupied by one or more Related Entities and their employees and that such use of the Premises shall not be considered an assignment or sublease, unless Tenant elects to treat it as such. Transfers to a Related Entity or Successor Entity shall not be subject to the provisions set forth in subsections (a)(iv), (b), (c), (d), (e)(ii), (f) or for any attorneys fees and disbursements described in subsection (i) which Landlord incurs in reviewing the proposed assignment of this Lease to a Related or Successor Entity, as the case may be, of this Section 29. Prior to any assigning this Lease, or a sublet all or part of the Premises to a Related Entity, Tenant shall furnish Landlord with the name of any such Related Entity and a written certification from a duly authorized senior officer of Tenant certifying to Landlord that such subtenant is controlled, controlling or under common control with Tenant. In addition, from time to time during any assignment of this Lease or subletting to a Related Entity, upon written request by Landlord, a duly authorized senior officer of Tenant shall certify in writing to Landlord, and shall substantiate by reasonable evidence, that such assignee or subtenant, as the case may be, continues to control, be controlled by or be under the common control with Tenant. Tenant hereby acknowledges and agrees that an assignment of this Lease, or a sublet of all or part of the Premises shall be deemed to have occurred at such time as such assignee or subtenant ceases to be controlled, controlling or under common control with Tenant, and that such assignment or subletting shall be subject to all the provisions of this Article 29 (including, without limitation, the obligation to obtain Landlord’s prior written consent). For purposes of clarification, the issuance, transfer, sale, pledge, or other disposition of the stock, shares, partnership interests, or other equity interests of Tenant shall be permitted without Landlord’s consent and without being subject to the aforesaid subsections, even where effective control of Tenant would shift as a result of any such transfer, in connection with the following transfers: (1) the public offering or trading of Tenant’s stock on a nationally recognized exchange or on the NASDAQ over-the-counter or “small cap issues” markets, or (2) a private placement or other raising of funds to be invested in Tenant for future expansion or additional working capital.
| - 37 - |
30. ENTIRE AGREEMENT AND MODIFICATIONS. This Lease and the covenants and agreements set forth herein are and shall constitute the entire agreement between the parties. Each party to this Lease hereby acknowledges and agrees that the other party has made no warranties, representations, covenants or agreements, express or implied, to such party other than those expressly set forth herein and that each party, in entering into and executing this Lease, has relied upon no warranties, representations, covenants or agreements, express or implied, to such party other than those expressly set forth herein and that each party, in entering into and executing this Lease, has relied upon no warranties, representations, covenants or agreements, express or implied, to such party other than those expressly set forth herein. None of the terms, covenants, and agreements of this Lease shall in any manner be altered, waived or changed, except by written instrument signed and delivered by the parties hereto.
| 31. | BROKER'S COMMISSION. |
(a) Landlord and Tenant represent and warrant to each other that they have dealt and negotiated solely and only with Savills Studley for this Lease and with no other broker. Landlord shall pay Savills Studley a brokerage commission pursuant to a separate agreement.
(b) Landlord and Tenant hereby agree to indemnify, defend and hold the other harmless from and against any and all claims, suits, damages, liabilities, counsel fees, costs, expenses, orders and judgments imposed upon, incurred by or asserted against Landlord or Tenant by reason of a breach by the indemnifying party of the representation and warranty set forth in this Section 31(b).
| - 38 - |
32. NOTICES. All correspondence and notices provided for in this Lease shall be in writing and shall be delivered (a) by hand delivery, if receipt is acknowledged in writing by the recipient at the time of receipt (b) by a recognized overnight courier providing evidence of receipt, or (c) deposited in the United States mail, registered or certified, return receipt requested, postage prepaid, to the Landlord or the Tenant, as the case may be, at the address stated in the preamble hereof, or at such other address as may be specified from time to time in writing, delivered to or sent to the other party as provided herein. Notices by registered or certified mail shall be considered delivered and become effective upon the earlier of receipt or three (3) Business Days after mailing thereof. For purposes of this Section 32 and all references in this Lease to Business Days other than in Section 6, “Business Days” shall mean any day except Saturday, Sunday and all days observed as legal holidays by the State of New Jersey. Notice by hand delivery shall be considered delivered and become effective on the day delivered or refused. Notices by overnight courier service shall be considered delivered and become effective the next Business Day. Copies of all notices given to Landlord shall also be sent to: (i) Windels Marx Lane & Mittendorf, LLP, 120 Albany Street, New Brunswick, New Jersey 08901 Attention: Karl Piirimae, (ii) CIP II Bridgewater Investor LLC, One Boston Place, Suite 2310, Boston, MA 02108, Attention: J. Frederic Begien, Jr., and (iii) Mansour Law Offices LLC, One Boston Place, Suite 2310, Boston, MA 02108, Attention: Lauree E. Mansour, and copies of all notices given to Tenant shall also be sent to: Sherman Wells Sylvester & Stamelman, 210 Park Avenue, Florham Park, NJ 07932, Attn: Grace J. Shin.
33. RECORDING Neither party shall record this Lease or any memorandum or "short form" of this Lease.
34. PERSON. The term "person" as used in this Lease shall, as appropriate, be deemed to include any natural person, firm, corporation, association, partnership and/or any other entity whatsoever.
35. HEADINGS AND INTERPRETATION. The paragraph headings used throughout this instrument are for convenience and reference only, and the words contained therein shall in no way be held to explain, modify, amplify or aid in the interpretation, construction, or meaning of the provisions of this Lease. Whenever herein the masculine gender is used, the same shall include the feminine and neuter gender.
36. MISCELLANEOUS, COUNTERPARTS. This Lease has been negotiated by Landlord and Tenant and this Lease, together with all of the terms and provisions hereof, shall not be deemed to have been prepared by either Landlord or Tenant, but by both equally. This Lease may be executed in any number of counterparts, each of which shall be deemed to be an original but all of which together shall constitute one and the same instrument.
37. SURVIVAL OF OBLIGATIONS. All obligations which by their nature involve performance, in any particular, after the end of the Term or which cannot be ascertained to have been fully performed until after the end of the Term, shall survive the expiration or sooner termination of the Term.
| - 39 - |
| 38. | COMPLIANCE WITH LAWS AND RULES AND REGULATIONS. |
(a) Subject to the provisions of this Section 38(a), Tenant shall, at its sole expense, comply with all local, state and federal statutes, codes, ordinances, regulations, rules, orders, directives and requirements of any governmental entity, authority, agency and/or department, which now or at any time hereafter may be applicable to the Building or any part thereof, including, but not limited to, all environmental laws (collectively, “Laws”), pertaining to any or all part of the Premises, Tenant, Tenant’s use of the Premises or Tenant’s occupancy thereof, and including, but not limited to, all Laws concerning or addressing matters of an environmental nature. Tenant shall give prompt notice to Landlord of any written notice it receives of the alleged violation of any Laws with respect to any or all of the Premises, Tenant’s use of the Premises or Tenant’s occupation thereof; and Landlord shall give prompt notice to Tenant of any written notice it receives of the alleged violation of any Laws with respect to any or all of the Project. Notwithstanding anything herein to the contrary, Landlord agrees that Tenant’s compliance obligation shall not require Tenant to make any repairs or modifications or improvements or Alterations, if such repairs or modifications or improvements or Alterations are required due to the general nature of the use of the Premises for scientific use or due to an act or omission unrelated to Tenant ( “General Required Alterations”), as distinguished from repairs or modifications or improvements or Alterations required (x) because of any Alterations made to the Premises, by or for the benefit of Tenant (including, without limitation, the Initial Tenant Improvements), (y) due to the specific manner of Tenant’s use of the Premises (by way of example and not limitation, clinical trials of the specific pharmaceutical products it conducts), or (z) because the keeping, use, storage, handling, treatment, generation on, or release or disposal of Hazardous Materials (as defined below) at the Premises or from the Premises by Tenant and/or Tenant’s Parties. Landlord shall be responsible for making repairs or modifications or improvements or General Required Alterations to comply with Laws as part of the Common Expense Costs. Tenant shall be responsible for making repairs or modifications or improvements other than General Required Alterations, including, without limitation the repairs or modifications or improvements or Alterations described in Subsections (x),(y) or (z) above.
| - 40 - |
(b) Landlord and Tenant acknowledge and agree that Tenant shall be handling Hazardous Materials (as defined below) at the Premises in connection with the Permitted Use. As a material inducement to Landlord, in order to allow Hazardous Materials to be brought upon, kept, used, stored, handled, treated, generated on, or released or disposed from the Premises by Tenant and/or Tenant’s Parties (as defined below) in connection with the Permitted Use, Tenant shall; (i) operate its business according to prudent industry practices, in accordance with all Laws (as defined below, including, without limitation, the preparation, maintenance and filing of all required documentation monitoring the acquisition, use, storage, handling, treatment, generation, release and/or disposition of all Hazardous Materials at the Premises), the Materials Handling Protocols (as defined below), the provisions of this Section 38, and the “Matinas Biopharma Protocols, a copy of which has been provided to Landlord prior to the Effective Date, (ii) never discharge any Hazardous Materials into the Building waste water system, (iii) complete and certify disclosure statements as reasonably requested by Landlord from time to time relating to Tenant’s acquisition, use, storage, handling, treatment, generation, release and/or disposition of all Hazardous Materials at the Premises), and (iv) provide Landlord with a list identifying each type of Hazardous Materials to be brought upon, kept, used, stored, handled, treated, generated on, or released or disposed of from the Premises and setting forth any and all governmental approvals or permits required in connection with the presence, use, storage, handling, treatment, generation, release or disposal of such Hazardous Materials on or from the Premises (“Hazardous Materials List”). Tenant shall deliver to Landlord an updated Hazardous Materials List at least once a year and shall also deliver an updated list before any new Hazardous Material is brought onto, kept, used, stored, handled, treated, generated on, or released or disposed of from, the Premises. The initial Hazardous Materials List has been provided to Landlord prior to the Effective Date. For purposes of this Lease, the “Center of Excellence Materials Handling Protocols” shall be the rules and procedures hereafter established by Landlord from time to time during the Term for the use, storage, handling, treatment, generation, release or disposition of Hazardous Materials within the Project, (the “Materials Handling Protocols”). Notwithstanding anything to the contrary contained herein, Tenant shall be responsible for all elements of the design, installation, maintain, repair and replacement of the waste management containment system (including without limitation, compliance with Laws, functionality of the design, and configuration of the system), and Landlord’s approval of the system shall in no event relieve Tenant of its responsibility for the design, installation, maintain, repair and replacement of the waste management containment system.
(c) Tenant shall, at its sole expense, comply with the Materials Handling Protocols and Laws, pertaining to any or all of the Premises, Tenant, Tenant’s use of the Premises or Tenant’s occupancy thereof, and including, but not limited to, all Laws concerning or addressing matters of an environmental nature. In addition, Tenant shall, at its sole expense, comply with all Rules and Regulations Landlord may impose from time to time in accordance with this Lease. Notwithstanding anything in this Lease to the contrary, no amendments to the Materials Handling Protocols or the Rules and Regulations shall be made if (i) such amendment shall impose an obligation on Tenant that would materially its costs or otherwise materially its obligations under this Lease, (ii) the amendment would affect and/or is enforced against tenants in an uneven or discriminatory manner, and/or (iii) is not customary to be in effect as a protocol for similar businesses. If any certificate, license or permit is required for the conduct of Tenant’s business in the Premises other than the certificate of occupancy, Tenant, at its expense, shall procure such certificate, license and permit prior to the Commencement Date, and shall maintain such certificate, license or permit in good standing throughout the Term. Tenant shall give prompt notice to Landlord of any written notice it receives of the alleged violation of any Law or requirement of any governmental or administrative authority with respect to any or all of the Premises, Tenant’s use of the Premises or Tenant’s occupation thereof.
| - 41 - |
(d) If, at any time or from time to time during the Term (or any extension thereof), any Hazardous Materials (defined below) are generated, transported, stored, used, treated or disposed of at, to, from, on or in either or both of the Premises and the Project by, or as a result of any act or omission of, any or all of Tenant and any or all of the Tenant Parties (as defined below): (i) Tenant shall, at its own cost, at all times comply (and cause all others to comply) with all Laws relating to Hazardous Materials, and Tenant shall further, at its own cost, obtain and maintain in full force and effect at all times all certificates, licenses and permits and other approvals required in connection therewith; (ii) Tenant shall promptly provide Landlord with complete copies of all communications, certificates, licenses, permits or agreements with, from or issued by any governmental authority or agency (federal, state or local) or any private entity relating in any way to the presence, release, threat of release, or placement of Hazardous Materials at, to, from, on or in either or both of the Premises or any portion of the Project, or the generation, transportation, storage, use, treatment, or disposal at, on, in or from either or both of the Premises or any portion of the Project, of any Hazardous Materials; (iii) Landlord, Agent and their respective agents and employees shall have the right, without the obligation, to either or both (x) enter the Premises upon reasonable prior notice to Tenant (except in cases of emergency in which no prior notice shall be required) and (y) conduct such sampling, tests and investigations as Landlord may elect, in its sole discretion, all at Tenant’s expense, if Landlord has a reasonable basis for believing that Tenant has breached the provisions of this Section 38, for the purposes of ascertaining Tenant’s compliance with all applicable Laws or certificates, licenses, permits or agreements relating in any way to the such Hazardous Materials; and (iv) if Landlord has a reasonable basis for believing that Tenant has breached the provisions of this Section 38, upon written request by Landlord, Tenant shall cause to be performed, and shall provide Landlord with the results of such sampling, tests and investigations as Landlord may elect, in its reasonable discretion, of air, water, groundwater and soil to demonstrate that Tenant complies with all applicable Laws or certificates, licenses, permits or agreements relating in any way to such Hazardous Materials.
(e) Tenant covenants to investigate, clean up and otherwise remediate, at Tenant’s sole expense, any release of Hazardous Materials caused, contributed to, or created by any or all of (A) Tenant and (B) any or all of Tenant’s shareholders, officers, directors, members, managers, partners, invitees, guests, agents, employees, contractors or representatives (“Tenant Parties”) during the Term. Such investigation and remediation (the “Required Remediation”) shall be performed only after Tenant has obtained Landlord’s prior written consent, which consent shall not be deemed a waiver by Landlord of its remedies under this Lease or Law for any Event of Default; provided, however, that Tenant shall be entitled to respond (in a reasonably appropriate manner) immediately to an emergency without first obtaining such consent. All Required Remediation shall be performed in strict compliance with Laws and to the reasonable satisfaction of Landlord (provided Landlord may not impose requirements more strict than those required by Laws). Notwithstanding anything to the contrary contained herein, in no event shall any remediation of either or both of the Premises or the Project involve the use of any engineering control, institutional control, a groundwater classification exception area, a well restriction area or natural attenuation. All Required Remediation shall only be deemed complete upon the delivery to Landlord of a response action outcome, or equivalent issued by a Licensed Site Remediation Professional (a “Response Action Outcome”). Tenant shall be solely responsible for and shall pay for any and all Natural Resource Damages attributable to the actions or omissions of Tenant or Tenant Parties. For purposes of this Lease, “Natural Resource Damages” shall mean any governmental claim for damages to natural resources asserted against Landlord, including, without limitation, any such claim under Section 107(f) of the Comprehensive Environmental Response, Compensation and Liability Act of 1980, or the New Jersey Spill Compensation and Control Act, as the case may be Tenant shall not enter into any settlement agreement, consent decree or other compromise with respect to any claims relating to any Hazardous Materials in any way connected with either or both of the Premises and the Project without first obtaining Landlord’s written consent (which consent may be given or withheld in Landlord’s sole, but reasonable discretion) and affording Landlord the reasonable opportunity to participate in any such proceedings, all at the cost and expense of Tenant, which Tenant shall pay (including, but not limited to, all legal and other professional and expert fees and expenses incurred by Landlord in connection therewith) as Additional Rent, upon demand. As used herein, the term, “Hazardous Materials” shall mean any regulated substance, toxic substance, hazardous substance, hazardous waste, pollution, pollutant or contaminant, as defined or referred to in any Law or Laws pertaining to the protection of human health or the environment, including, without limitation, radon, asbestos, polychlorinated biphenyls, urea formaldehyde and petroleum products and petroleum based derivatives. Where a Law defines any of these terms more broadly than another Law, the broader definition shall apply. Notwithstanding anything to the contrary hereunder, and without waiving all other requirements set forth in this Lease and without this provision being deemed a permission for Tenant to generate, transport, store, use, treat or dispose of any Hazardous Materials at, to, from, on or in either or both of the Premises and the Project, Tenant shall be deemed the owner and generator of Hazardous Materials caused by Tenant to be located at the Premises, and Tenant shall have sole responsibility for all legal and regulatory compliance concerning such Hazardous Materials, including, without limitation, responsibility for proper training, storage, handling, labeling, distribution and off-Project disposal.
| - 42 - |
(f) Tenant hereby represents and warrants to Landlord, and covenants with Landlord, that the Tenant’s North American Industrial Classification Number (“NAICS”) is 541711, and that throughout this Term, Tenant shall not change the nature of Tenant’s operations at the Premises in a manner that shall result in a change of Tenant’s NAICS number. If prior to the expiration or earlier termination of the Lease, Tenant: (i) fails, pursuant to the Industrial Site Recovery Act, N.J.S.A. 13:1K-6 et seq., and the regulations promulgated there under, and any and all amending and successor legislation and regulations (“ISRA”) and this Lease, to obtain and deliver to Landlord, either (A) the Affidavit, (B) a de minimis quantity exemption issued by the NJDEP, or (C) a Response Action Outcome issued by a Licensed Site Remediation Professional, (the “ISRA Clearance”); or (ii) fails to remediate all Hazardous Materials pursuant to the requirements of this Section 38, and deliver to Landlord a Response Action Outcome (the “Environmental Clearance”); then upon the expiration or earlier termination of this Lease, Landlord shall have the option, in addition to all other remedies available to Landlord under this Lease and Law, either to consider this Lease as having ended or to treat Tenant as a hold-over tenant in possession of the Premises. If Landlord considers this Lease as having ended, then Tenant shall nevertheless be obligated to promptly obtain and deliver to Landlord the ISRA Clearance or the Environmental Clearance, as the case may be, and otherwise fulfill all of the obligations of Tenant set forth in this Section 38. If Landlord treats Tenant as a hold-over tenant in possession of the Premises, then Tenant shall pay, monthly to Landlord, double the Base Rent which Tenant would otherwise have paid under the Lease, until such time as Tenant delivers to Landlord the ISRA Clearance or the Environmental Clearance, as the case may be, and otherwise fulfills its obligations to Landlord under this Section 38 and during the holdover period, all of the terms of this Lease shall remain in full force and effect. Tenant shall, at no cost to Tenant cooperate with Landlord by supplying any information or signing any documentation that that may be requested by Landlord, and otherwise assisting Landlord with respect to the compliance with ISRA by Landlord or any other tenant of the Project, in the event that Landlord or any other tenant of the Project triggers ISRA by its actions.
| - 43 - |
(g) The undertakings, covenants and obligations imposed on Landlord and Tenant under this Section 38 shall survive the termination or expiration of this Lease.
(h) Tenant and its employees, suppliers, customers, and invitees agree to abide by and conform to the Rules and Regulations attached hereto as Exhibit “J”, as Landlord shall have the right to enforce these Rules and Regulations, and from time to time, to modify and amend the Rules and Regulations in its’ reasonable discretion in accordance with the provisions of 38(c) above. Landlord shall not be responsible to Tenant for the failure of other persons, including, but not limited to, other tenants, their agents, employees, and invitees, to comply with the Rules and Regulations. In the event of any conflict between the Rules and Regulations and this Lease, the terms and provisions of this Lease shall govern.
(i) Except as otherwise documented in the Environmental Baseline Report (as hereafter defined), Landlord represents and warrants, as of the Effective Date and to Landlord’s knowledge, there are no Hazardous Materials located at the Premises, the Building or the Project in violation of applicable Law. Landlord hereby indemnifies, and shall pay, protect and hold Tenant and Tenant Indemnitees harmless from and against all liabilities, losses, claims, demands, costs, expenses (including reasonable attorneys' fees and expenses) and judgments of any nature arising, or alleged to arise, from or in connection with (a) any Hazardous Materials or violations of Law affecting the Premises, the Building or the Project prior to the Commencement Date, or (b) any Hazardous Materials or violations of Law affecting the Premises, the Building or the Project after the Commencement Date to the extent directly caused by the negligence of Landlord or any Landlord Parties. Landlord will resist and defend any action, suit or proceeding brought against Tenant by reason of any such Hazardous Materials in violation of applicable Law, which are not the result of Tenant’s operations at, or occupancy of the Premises or the acts or negligence of any Tenant Parties, by independent counsel selected by Landlord, which is reasonably acceptable to Tenant. For purposes of this Lease, the “Environmental Baseline Report” shall mean and refer to that certain “Phase I Environmental Site Assessment” by AEI Consultants dated April 9, 2013.
39. ATTORNEYS’ FEES AND COSTS. In the event either Landlord or Tenant shall file any proceeding against the other, whether at law or in equity, to enforce the provisions of this Lease, the prevailing party shall be entitled to collect its reasonable attorney fees and costs from the other party.
| - 44 - |
40. WAIVER OF TRIAL BY JURY. THE LANDLORD AND THE TENANT, TO THE FULLEST EXTENT THAT THEY MAY LAWFULLY DO SO, HEREBY WAIVE TRIAL BY JURY IN ANY ACTION OR PROCEEDING BROUGHT BY ANY PARTY TO THIS LEASE WITH RESPECT TO THIS LEASE, THE PREMISES, OR ANY OTHER MATTER RELATED TO THIS LEASE OR THE PREMISES.
41. SEC FILING. Except for the filing of this Lease with the U.S. Securities and Exchange Commission (the “Commission”), Landlord and Tenant each agrees that the terms of this Lease shall not be disclosed or otherwise made available to the public and that copies of this Lease shall not be publicly filed or otherwise made available to the public, except where such disclosure, availability, or filing is required by applicable Law and only to the extent required by such Law. In the event that such disclosure, availability, or filing is required by applicable Law, including the filing of this Lease with the Commission, Landlord and Tenant each (as applicable) agrees to consult with each other regarding an effort to obtain “confidential treatment” of specified portions of this Lease with the Commission (or the equivalent treatment by any other governmental authority) to the extent such treatment is requested in writing by another party hereto.
42. SIGNAGE.
(a) Tenant may not erect, install, place, or display any sign or advertising material upon the exterior of the Premises (including but not limited to any exterior doors, walls, or windows), Buildings, Common Areas, Parking Areas, or any other part of the Project without the prior written consent of Landlord; provided, however, that Tenant shall have the right to erect and maintain interior signs on the third floor of the Building. The size, style/design, location and method of installation of such signage shall be subject to Landlord’s approval and applicable Laws in all respects. Any and all signs installed or constructed by or on behalf of Tenant in accordance with this subsection (a) shall be installed, maintained in good condition and repair, and removed by Tenant at the expiration or earlier termination of this Lease, at Tenant’s sole cost and expense. Tenant shall repair any damage to the Premises caused by such signs or installation or removal thereof. Landlord reserves the right to adopt uniform rules and regulations relating to and governing signage at the Project.
(b) Landlord shall install such signage within the Project as Landlord reasonably determines as is required for the ease of visitors and delivery people to locate the Premises. Landlord reserves the right to reconfigure the Project site directory in connection with the development of the Exclusion Area.
43. INITIAL TENANT IMPROVEMENTS.
(a) Subject to the provisions of this Lease, including without limitation the provisions of Section 22, Landlord agrees to undertake the work more particularly described in the Work Letter attached hereto as Exhibit “M” (the “Initial Tenant Improvements”).
| - 45 - |
44. CHANGES TO PROJECT; EASEMENTS. Landlord shall have the right at its sole discretion, from time to time, to make changes to the Building, the Common Areas and the Project, including but not limited to changes to the size, shape, location, number, and extent of the improvements comprising the Project (hereinafter referred to as "Changes") including, but not limited to, the exterior of the buildings including the Building, the Common Areas including, without limitation the parking garages and parking areas, the parking and traffic control systems, driveways, roads, entrances, exits, parking spaces, loading and unloading areas, ingress, egress, walkways, and utility and landscaped areas. Not in limitation of the foregoing, Landlord shall have the right to remove or demolish the helipad and all buildings and improvements in the Project (excluding the Building), and to sell all or any part of the Project. In addition, Landlord can close temporarily any of the Common Areas for maintenance purposes, can use all Common Areas while engaged in making additional improvements, repairs or alterations to the Project or any part thereof, and can do and perform such other acts and make such other changes in, to, or with respect to the Common Areas and the Project as Landlord may, in Landlord’s sole discretion, deem to be appropriate. Not in limitation of the foregoing, Landlord shall have the right to restrict or eliminate Tenant's right to use certain of the roads in the Project, so long as Tenant's access to the Premises is not materially affected. In connection with the Changes, Landlord may, among other things, erect scaffolding or other necessary structures at the Project, limit access to portions of the Project, including portions of the Common Areas, and perform work in or on the buildings, which work may create noise, dust, or leave debris in the Building; provided that Landlord shall not be entitled to materially adversely affect Tenant's access to or use of the Premises or the Common Areas. Tenant hereby agrees that such Changes and Landlord's actions in connection with such Changes in accordance with the provisions of this Section shall in no way constitute a constructive eviction of Tenant or entitle Tenant to any abatement of rent. Provided such Changes comply with this Section, Landlord shall have no responsibility or for any reason be liable to Tenant for any direct or indirect injury to or interference with Tenant's business arising from the Changes, nor shall Tenant be entitled to any compensation or damages from Landlord for any inconvenience or annoyance occasioned by such Changes or Landlord's actions with such Changes in compliance with the provisions of this Section 44.
45. INTENTIONALLY DELETED
46. FOOD SERVICE AND FITNESS CENTER
(a) Landlord and/or a third-party vendor, determined in Landlord’s sole discretion, shall provide breakfast and lunch food service in Building CC (as such Building CC is shown on Exhibit “N”), the level, type of service, and hours of which operation shall be reasonably determined by Landlord and/or the third-party provider. Tenant agrees to make its employees aware of such food service. The food service operation shall be made available to other tenants of the Project. Landlord expressly reserves the right to relocate the above-described food service area to another location within the Project or the Exclusion Area, create an alternative food service area within the Project or the Exclusion Area, or terminate providing breakfast and lunch food service at the Project at any time during the Term, in Landlord’s sole discretion.
| - 46 - |
(b) (i) Subject to the provisions of this Section 46, Landlord and/or a third-party vendor, determined in Landlord’s sole discretion, shall provide Tenant’s employees (and the employees of all other occupants of the Project) with access to the existing fitness center located in Building C (as such Building C is shown on Exhibit “N”), the type and level of amenities, and hours of which operation, shall be reasonably determined by Landlord and/or the third-party provider. The use of this fitness center shall be subject to the reasonable Rules and Regulations of Landlord now or hereafter imposed, as to manner of usage, frequency of usage, fees and expenses thereof and such other similar and reasonable Rules and Regulations as Landlord shall, from time to time, impose. Landlord expressly reserves the right to relocate the above-described fitness center to another location within the Project, or to the Exclusion Area, or terminate providing the fitness center at the Project at any time during the Term, in Landlord’s sole judgment.
(ii) Tenant shall not grant to any employee the right, and no employee of Tenant shall be permitted, to use the fitness center facilities unless and until Tenant (i) shall have notified Landlord that Tenant has granted such right to such employee and (ii) shall have caused such employee to complete and execute a waiver of liability on Landlord’s standard form and delivered such executed document to Landlord. Tenant acknowledges that all users of the health club facilities do so at their own risk and agrees that it shall be solely Tenant’s obligation to fully inform each of Tenant’s employees to whom the right to use the health club facilities may be granted of such risk. Tenant acknowledges and agrees that Landlord shall have no liability to Tenant for any personal injury or property damage arising from or in connection with (A) the use of the health club facilities by any of Tenant’s employees or (B) Landlord’s operation and/or maintenance of the health club facilities, including any such claim arising out of negligence, and Landlord shall have no liability to Tenant for any claims arising from Landlord’s election to discontinue providing the fitness center within the Project. In addition, Landlord reserves the right to discontinue providing the fitness center as an amenity to an employee of Tenant at any time if such employee violates any of the rules, regulations or conditions governing the use of the health club facilities (including the Rules and Regulations of Landlord now or hereafter imposed as set forth above).
47. CONDOMINIUM
(a) Landlord represents and warrants to Tenant that (i) the Condominium Documents are in full force and effect and have not been amended and no rules or regulations that may be created pursuant to the Condominium Documents currently exist, (ii) Landlord holds all of the rights of the Grantor under the Condominium Documents and has not assigned any of them, in whole or in part, (iii) while Peters Brook Village Association, Inc., the New Jersey nonprofit corporation formed to administer the Condominium Project (the “Association”), has been formed, the Association has been inoperative to date. Tenant has reviewed and approved the Condominium Documents and Tenant acknowledges and agrees that this Lease is subject and subordinate to the Condominium Documents in all respects. Tenant shall, at no cost to Landlord, execute an agreement in recordable form confirming that this Lease is subject and subordinate to the Condominium Documents within ten (10) days following Landlord’s request therefor. Tenant shall, at Tenant’s sole cost and expense, comply with the provisions of the Condominium Documents and all Rules and Regulations regarding the use of the Premises and the Common Areas, and the operation of Tenant’s business therein as may be established from time to time pursuant to the Condominium Documents. Landlord shall have the right at any time after the Effective Date to modify the terms of the Condominium Documents as Grantor and/or the Owner of all of the Units located within the Condominium Project, or as Grantor consent to or approve an amendment to, or vote as an Owner to amend, the Condominium Documents, without the consent of Tenant. Notwithstanding anything to the contrary contained herein, if Landlord wants to amend the Condominium Documents and such modifications would materially and adversely interfere with Tenant’s use of the Premises for the Permitted Use, or materially and adversely affect the rights of Tenant under this Lease, then Landlord shall request Tenant’s consent to such modifications to the Condominium Documents, which consent may be withheld in Tenant’s sole discretion.
| - 47 - |
(b) Tenant shall defend, indemnify and hold harmless Landlord from and against any and all claims, demands, causes of action, suits, damages, liabilities and expenses of any nature, including reasonable attorney’s fees, arising out of or in connection with the enforcement by the Association of any covenant, term, condition or provision of the Condominium Documents arising from (i) Tenant’s use of the Premises or the conduct of Tenant’s business at the Project, or (ii) Tenant’s failure to comply with Tenant’s obligations under this Lease.
48. FINANCIAL STATEMENTS. Within twenty (20) days after Landlord’s written request, Tenant at its expense shall deliver to Landlord copies of Tenant’s most recent annual financial statements. The financial statements shall include a balance sheet and a statement of profit and loss. All financial statements shall be prepared in accordance with Tenant’s normal accounting methods applied on a consistent basis from year-to-year and shall be certified by Tenant’s Chief Financial Officer, or the equivalent. Notwithstanding anything to the contrary contained herein, if at any time during the Term the Tenant or any other successor thereto, shall have their financial statements audited by an independent certified public accountant, then Tenant shall be required to provide such audited financial statements to Landlord’s pursuant to the terms of this Section 48. Notwithstanding anything in this Lease to the contrary, Tenant shall not be required to provide any financial statements (a) unless Landlord is requesting the same in writing in connection with a financing of the Project and/or an executed contract of sale of the Premises and/or (b) so long as Tenant is a publicly traded company.
49. RELOCATION OF TENANT.
(a) During the first five (5) years of the Term, Landlord shall have the right to relocate Tenant to other premises within the Project (the “Relocation Space”) upon not less than ninety (90) days’ prior notice so long as the rentable square footage of such premises is equal to or greater than (but not materially greater) the rentable square footage of the Premises. If Landlord exercises such right, Landlord agrees, at its sole cost and expense, (i) to prepare the new premises for Tenant’s occupancy in a manner consistent with the level of tenant improvement in the Premises and (ii) to remove, relocate and install Tenant’s trade fixtures, equipment and furniture in the new premises. For the balance of the Term, this Lease shall continue in full force and effect and shall apply to the new premises as though this Lease had originally been for the new premises, including, but not limited to, the same Base Rent and Additional Rent as this Lease now provides; accordingly, if the rentable square footage of the new premises is greater than the rentable square footage of the Premises, then the Base Rent and Additional Rent shall not be increased.
| - 48 - |
(b) Within twenty (20) days following (i) the giving by Landlord of a notice stating that the Relocation Space is Substantially Completed, and (ii) Tenant’s satisfaction of all regulatory requirements due to such relocation (which Tenant shall pursue with reasonable diligence), Tenant shall vacate the Premises and move into the Relocation Space. Landlord agrees to pay Tenant for all reasonable costs and expenses incurred by Tenant in connection with the move to the Relocation Space (including, without limitation, reasonable telephone installation fees and charges) within thirty (30) days following receipt of an invoice or other evidence setting forth in reasonable detail the costs and expenses incurred by Tenant and a description of services performed.
(c) In the event Landlord exercises its right to relocate Tenant, Landlord and Tenant hereby agree, within twenty (20) days after Tenant takes possession of the Relocation Space, to promptly amend those provisions of this Lease which are affected by the relocation and the change, if any, in the rentable area (other than Base Rent and Additional Rent).
[REMAINDER OF PAGE INTENTIONALLY BLANK]
| - 49 - |
IN WITNESS WHEREOF, Landlord and Tenant have executed this Lease on the day and year first above written.
| LANDLORD | ||
| CIP II/AR BRIDGEWATER HOLDINGS LLC | ||
| A Delaware limited liability company | ||
| By: | CIP II/AR Bridgewater LLC, | |
| a Delaware limited liability company, | ||
| its sole member | ||
| By: | AR at Bridgewater LLC | |
| a New Jersey limited liability company, | ||
| its Administrative Manager | ||
| By: | ACP Land Holdings, LLC | |
| a New Jersey limited liability company, | ||
| its sole member | ||
| By: | Padco Management, Inc., | |
| a New Jersey corporation, | ||
| its managing member | ||
| By: | /s/ Kurt Padavano | |
| Name: Kurt Padavano | ||
| Title: Senior Vice President | ||
| TENANT | ||
| MATINAS BIOPHARMA HOLDINGS, INC. | ||
| By: | /s/ Roelof Rongen | |
| Name: Roelof Rongen | ||
| Title: Chief Executive Officer | ||
| - 50 - |
EXHIBIT “A”
LAND
| - 51 - |

| - 52 - |

| - 53 - |
EXHIBIT “B”
EXCLUSION AREA
| - 54 - |
EXHIBIT “C”
PREMISES
| - 55 - |

| - 56 - |
EXHIBIT “D”
[INTENTIONALLY DELETED]
| - 57 - |
EXHIBIT “E”
RETAINED FFE
[AGREED UPON LIST OF THE RETAINED FFE TO BE INSERTED POST LEASE EXECUTION]
| - 58 - |
EXHIBIT “F”
BILL OF SALE
THIS BILL OF SALE is made and entered into as of this 1st day of July__, 2021, by and between CIP II/AR BRIDGEWATER HOLDINGS LLC, a Delaware limited liability company, having an office at c/o Advance Realty Development, 1041 U.S. Highway 202/206, Bridgewater, NJ 08807 (“Bridgewater”), and MATINAS BIOPHARMA HOLDINGS INC., a Delaware corporation, having an office at New Jersey Center for Excellence, Building L, 1029 U.S. Highway 202/206 Bridgewater, New Jersey 08807 (“MATINAS BIOPHARMA”).
WHEREAS, Bridgewater and MATINAS BIOPHARMA have executed that certain Lease dated as of __________ __, 2016 (the “Lease”); and
WHEREAS, in accordance with the terms and subject to the conditions of the Lease, Bridgewater now desires to transfer and convey to MATINAS BIOPHARMA all of Bridgewater’s right, title, and interest in and to the tangible personal property described on Exhibit A attached hereto and incorporated by reference herein (the “Retained FFE”), and MATINAS BIOPHARMA desires to accept the transfer and conveyance thereof.
NOW, THEREFORE, for and in consideration of the mutual covenants contained herein and in the Lease and other good and valuable consideration, the receipt and sufficiency of which are hereby acknowledged, and upon and subject to the terms and conditions set forth in the Lease, Bridgewater and MATINAS BIOPHARMA agree as follows:
Bridgewater hereby transfers, conveys to MATINAS BIOPHARMA and its successors and assigns all of Bridgewater’s right, title, and interest in and to the Retained FFE, without representation, warranty or recourse except as expressly provided herein, and MATINAS BIOPHARMA hereby accepts the transfer and conveyance of all of Bridgewater’s right, title, and interest in the Retained FFE.
Bridgewater hereby represents and warrants to MATINAS BIOPHARMA that it has good and marketable title to the Retained FFE and each component thereof free and clear of any security interest, liens or other monetary encumbrances except those that have arisen out of the acts or omissions of Tenant.
Bridgewater hereby specifically disclaims, and, except as expressly stated in the prior paragraph, has not made, and does not now make, any representations, warranties, covenants, or guarantees, oral or written, as to the past, present or future condition, income, expenses, operation, or any other matter or thing relating in any way to the Retained FFE and MATINAS BIOPHARMA acknowledges that no such representations, warranties, guarantees, agreements, covenants and conditions were made or have been made by Bridgewater or by any party on Bridgewater’s behalf. MATINAS BIOPHARMA acknowledges that MATINAS BIOPHARMA has had an opportunity to fully inspect, and has fully inspected, the Retained FFE.
| - 59 - |
SUBJECT TO THE PARAGRAPH BELOW, MATINAS BIOPHARMA ACCEPTS THE RETAINED FFE IN ITS PRESENT CONDITION, “AS IS” “WHERE IS,” WITH ANY AND ALL FAULTS, AND, WITHOUT ANY REPRESENTATIONS OR WARRANTIES BY BRIDGEWATER, EXPRESS OR IMPLIED, OF MERCHANTABILITY, FITNESS, CONDITION, QUALITY OR CAPACITY THEREOF, AND ACKNOWLEDGES AND AGREES THAT BRIDGEWATER AND ITS EMPLOYEES AND AGENTS HAVE MADE NO REPRESENTATIONS, WARRANTIES, COVENANTS, OR AGREEMENTS OF ANY KIND OR CHARACTER WHATSOEVER, EXPRESS OR IMPLIED, AS TO THE RETAINED FFE OR ANY OTHER MATTER OR THING WHATSOEVER RELATING IN ANY WAY TO THE RETAINED FFE, AND NOT IN LIMITATION OF THE FOREGOING, BRIDGEWATER DOES NOT MAKE ANY REPRESENTATIONS, WARRANTIES, COVENANTS OR GUARANTEES REGARDING HAZARDOUS MATERIALS OR THE PRESENCE OR DISPOSAL OF ANY HAZARDOUS MATERIALS OR ANY OTHER HAZARDOUS OR TOXIC SUBSTANCES IN OR ON THE RETAINED FFE.
SUBJECT TO THE NEXT PARAGRAPH, FROM AND AFTER THE OF DATE OF THIS BILL OF SALE, MATINAS BIOPHARMA HEREBY EXPRESSLY ASSUMES ALL RISKS, LIABILITIES, CLAIMS, DAMAGES AND COSTS (AND AGREES THAT BRIDGEWATER SHALL NOT BE LIABLE FOR ANY SPECIAL, DIRECT, INDIRECT, CONSEQUENTIAL OR OTHER DAMAGES) RESULTING OR ARISING FROM, OR RELATED TO, THE OWNERSHIP, USE, CONDITION, LOCATION, MAINTENANCE, REPAIR OR OPERATION OF THE RETAINED FFE. MATINAS BIOPHARMA ACKNOWLEDGES THAT ANY CONDITION OF THE RETAINED FFE THAT MATINAS BIOPHARMA DISCOVERS OR DESIRES TO CORRECT OR IMPROVE PRIOR TO OR AFTER THE DATE OF THIS BILL OF SALE SHALL BE AT MATINAS BIOPHARMA’S SOLE EXPENSE. MATINAS BIOPHARMA EXPRESSLY WAIVES (TO THE EXTENT ALLOWED BY APPLICABLE LAW) ANY CLAIMS UNDER FEDERAL, STATE OR OTHER LAW THAT MATINAS BIOPHARMA MIGHT OTHERWISE HAVE AGAINST BRIDGEWATER RELATING TO THE USE, CHARACTERISTICS, OR CONDITION OF THE RETAINED FFE. THE TERMS OF THIS SECTION SHALL SURVIVE THE EXECUTION AND DELIVERY OF THIS BILL OF SALE.
THE PRIOR TWO PARAGRAPHS ARE IN ALL RESPECTS SUBJECT TO THE REPRESENTATIONS AND WARRANTIES EXPRESSLY SET FORTH IN THIS BILL OF SALE.
| - 60 - |
IN WITNESS WHEREOF, Bridgewater and MATINAS BIOPHARMA have executed this Bill of Sale in two (2) counterparts as of the date set forth above.
CIP II/AR BRIDGEWATER HOLDINGS LLC,
a Delaware limited liability company
| By: | CIP II/AR Bridgewater LLC, |
| a Delaware limited liability company, | |
|
its sole Member |
| By: | AR at Bridgewater LLC, | |
| a New Jersey limited liability company, | ||
|
its Administrative Manager |
| By: | ACP Land Holdings, LLC, | ||
| a New Jersey limited liability company, | |||
|
its sole Member |
| By: | Padco Management, Inc., | |||
| a New Jersey corporation, | ||||
| its Managing Member |
| By: | |||||
| Name: Kurt Padavano | |||||
| Title: Senior Vice President |
MATINAS BIOPHARMA HOLDINGS, INC.
|
By: |
||
| Name: | ||
| Title: |
| - 61 - |
EXHIBIT “G”
COMMENCEMENT DATE AGREEMENT
Date:
| Tenant: | MATINAS BIOPHARMA HOLDINGS, INC. |
| Address: | 1029 U.S. Highway 202/206 |
Bridgewater, New Jersey 08807
Re: Commencement of Lease Agreement by and between CIP II/AR BRIDGEWATER HOLDINGS LLC, a Delaware limited liability company, as Landlord, and MATINAS BIOPHARMA HOLDINGS, INC. a Delaware corporation , as Tenant, for 14,336 rentable square feet of Building L located at 1029 U.S. Highway 202/206, Bridgewater, New Jersey.
Dear __:
In accordance with the terms and conditions of the above referenced Lease, Tenant accepts possession of the Premises and agrees:
1. The Commencement Date of the Lease is __________;
2. The Termination Date of the Lease is ______.
Please acknowledge your acceptance of possession and agreement to the terms set forth above by signing all three (3) counterparts of this Commencement Date Agreement in the space provided and returning two (2) fully executed counterparts to my attention.
Sincerely,
Agreed and Accepted:
50. Tenant: MATINAS BIOPHARMA HOLDINGS, INC.
|
By: |
||
|
Title: |
||
| Name: | ||
|
Date: |
| - 62 - |
EXHIBIT “H”
REAL PROPERTY TAX CALCULATION METHODOLOGY
| - 63 - |

| - 64 - |

| - 65 - |

| - 66 - |

| - 67 - |

| - 68 - |

| - 69 - |

| - 70 - |

| - 71 - |
EXHIBIT “I”
[INTENTIONALLY DELETED]
| - 72 - |
EXHIBIT “J”
RULES AND REGULATIONS
GENERAL RULES
Capitalized terms as used in the Rules and Regulations shall have the meanings therefor as set forth in the Lease. The following Rules and Regulations shall apply, where applicable, to the Premises, the Buildings, all common areas of the Project, and the appurtenances thereto. Tenant shall faithfully observe and comply with the following Rules and Regulations:
1. Tenant shall not alter any locks or install any new or additional locks or bolts on any doors or windows of the Premises without obtaining Landlord’s prior written consent, which will not be unreasonably withheld. Tenant shall bear the cost of any lock changes or repairs required by Tenant. Keys required by Tenant must be obtained from Landlord at a reasonable cost to be established by Landlord.
2. The toilet rooms, urinals, and wash bowls shall not be used for any purpose other than that for which they were constructed, and no foreign substance of any kind whatsoever shall be thrown therein. The expense of any breakage, stoppage, or damage resulting from the violation of this rule shall be borne by the tenant who, or whose employees or agents, shall have caused it.
3. Tenant shall not bring into or keep within the Premises or Project any animals, birds, reptiles, etc. (except for service animals).
4. Landlord reserves the right to exclude or expel from the Project any person who, in the judgment of Landlord, is intoxicated or under the influence of liquor or drugs or who shall in any manner do any act in violation of any of these Rules and Regulations.
5. Tenant shall not, without the prior written consent of Landlord, which consent shall not be unreasonably withheld, use any method of heating or air conditioning other than that permitted by Landlord.
6. All trash, garbage, and refuse disposal by Tenant shall be made at the sole expense of Tenant in compliance with applicable laws and ordinances and in a manner that is reasonably acceptable to Landlord, including without limitation, the size, location and appearance of dumpsters or other receptacles.
7. Tenant shall comply with all safety, fire protection, and evacuation procedures and regulations established by Landlord or any governmental agency.
| - 73 - |
8. No awnings or other projection shall be attached to the outside walls or windows of the Buildings by Tenant other than signs that Tenant is permitted to install pursuant to the Lease.
9. Except with the prior written consent of Landlord, which will not be unreasonably withheld, no person or persons other than those approved by Landlord shall be permitted to enter the Project for the purpose of cleaning same. Landlord shall in no way be responsible to Tenant for any loss of property on the Premises by cleaning personnel, notwithstanding Landlord’s approval of same.
10. Sidewalks, entrances, passageways, courts, corridors, vestibules, halls, elevators, electrical and fire panels and stairways in and about the Buildings shall not be obstructed nor shall objects be placed against glass partitions, doors or windows which would be unsightly from or from the exterior of the Buildings.
11. No part of the Buildings shall be defaced or damaged by Tenant.
12. If movement in or out of the Buildings or Project of furniture or equipment, or dispatch or receipt by Tenant of any merchandise or materials, causes equipment, property and/or personnel of Landlord or of any other tenant damage or injury as a result of or in connection with such activity, Tenant shall be solely liable for any and all damage or loss resulting therefrom.
13. Tenant shall keep all electrical and mechanical apparatus owned by Tenant free of vibration, noise and airwaves which may be transmitted beyond the Premises.
14. Canvassing, soliciting and peddling in or about the Buildings or Project are prohibited. Tenant shall cooperate and use its best efforts to prevent the same.
15. Tenant shall not use the Premises in any manner which would overload the heating, ventilating or air conditioning systems, electrical and fire systems, and all utilities of the Building.
16. Tenant shall, if necessary, utilize a pest extermination service to control pests in the Premises. Tenant shall bear the cost and expense of such extermination services.
17. Landlord shall have the right to prohibit the use of the name of the Premises or any other publicity by Tenant that in Landlord’s opinion may tend to impair the reputation of the Premises or Project or Landlord or the desirability of the Project for Landlord’s other tenants. Upon written notice from Landlord, Tenant shall refrain from and/or discontinue such publicity immediately.
18. Neither Tenant nor any of its Tenant’s Agents shall smoke in the Premises.
| - 74 - |
PARKING RULES
1. Parking Areas in which Tenant has exclusive rights may be used for parking of vehicles as determined by Tenant in Tenant’s sole discretion. Other Tenant Parking Areas shall be used only for parking by vehicles no longer than full-size, passenger automobiles (herein called “Permitted Size Vehicles.”)
2. Tenant shall not permit or allow any vehicles that belong to or are controlled by Tenant or Tenant’s employees, suppliers, shippers, customers, or invitees to be loaded, unloaded, or parked in areas other than those designated by Landlord for such activities. Users of the Parking Areas will obey all posted signs and park only in the areas designated for vehicle parking.
3. Landlord will not be responsible for any damage to vehicles, injury to persons, or loss of property, all of which risks are assumed by the party using the Parking Areas.
4. The maintenance, washing, waxing, or cleaning of vehicles in the Parking Areas or Common Areas is prohibited.
5. Tenant shall be responsible for seeing that all of Tenant’s Agents comply with the applicable parking rules, regulations, laws, and agreements.
6. The Parking Areas shall only be used for daily or short term parking and no vehicle or other property shall be stored in the Parking Areas.
Subject to the terms and provisions of the Lease, Landlord reserves the right at any time to change or rescind any one or more of these Rules and Regulations, or to make such other and further Rules and Regulations as in Landlord’s judgment may from time to time be necessary for the management, safety, care, and cleanliness of the Project, and for the preservation of good order therein as well as for the convenience of other occupants and tenants therein.
| - 75 - |
EXHIBIT “K”
[INTENTIONALLY DELETED]
| - 76 - |
EXHIBIT “L”
[INTENTIONALLY DELETED]
| - 77 - |
EXHIBIT “M”
WORK LETTER
| - 78 - |
This Exhibit “M” is attached to and made a part of that certain Lease Agreement dated December 15, 2016 (the “Lease”), between CIP II/AR BRIDGEWATER HOLDINGS LLC (“Landlord”) and MATINAS BIOPHARMA HOLDINGS, INC. (“Tenant”). The terms used in this Exhibit that are defined in the Lease shall have the same meanings as provided in the Lease.
The purpose of this Exhibit “M” is to set forth the relative rights and obligations of Landlord and Tenant with respect to the construction and installation of the initial tenant improvements in the Premises (the “Initial Tenant Improvements”). The performance of this work will proceed in accordance with the following terms and conditions.
A. Final Plans
(1) Landlord and Tenant agree that Landlord shall construct and install the Initial Tenant Improvements in accordance with those certain Plans prepared by PS&S dated October 27, 2016 as more particularly described on Schedule 1 attached hereto (the “Final Plans”) Tenant hereby confirms that Tenant has approved the Final Plans.
(2) Landlord has presented Tenant with the Estimate Sheet attached hereto as Schedule 2, and Tenant has approved the budget of $904,546.99 (the “Approved Budget”) prepared by Advance Construction (the “Landlord’s Contractor”) which is more particularly set forth on Schedule 2 for the construction and installation of the Initial Tenant Improvements based upon the Final Plans.
B. Tenant Improvements
(1) As soon as reasonably practicable after the Effective Date of the Lease Agreement, Landlord’s Contractor shall commence demolition work in the Premises. As soon as reasonably practicable after the Effective Date of the Lease Agreement, and Landlord’s Contractor’s receipt of all required permits and approvals for the Initial Tenant Improvements Work, Landlord’s Contractor shall construct the installations and improvements and complete the Initial Tenant Improvements Work in accordance with the Final Plans, (excluding the Initial Tenant Installations as hereinafter defined). In connection with the performance of Initial Tenant Improvements Work, Landlord shall be responsible for the Cost of the Initial Tenant Improvements Work as defined in paragraph 2(a) below up to the total amount of $286,720.00 (representing $20.00 per rentable square foot of the Premises, the “Construction Credit”). For purposes of this Exhibit “M”, the total amount of the Approved Budget less the Construction Credit shall be referred to as an “Additional Cost” and paid by Tenant in accordance with Paragraph 2(c). Landlord and Tenant acknowledge and agree that the Additional Cost is $617,826.99.
| - 79 - |
(2) (a) The term “Cost of the Initial Tenant Improvements Work” as used in this Exhibit “M” shall mean all costs of demolition and constructing the work pursuant to the Final Plans, including, without limitation, materials, labor, subcontract costs and general conditions (excluding all soft costs, including, without limitation, legal fees, moving expenses, telephone and data systems and expenses, security systems, and all furniture, fixtures and equipment).
(b) Any changes requested by Tenant from the work indicated on the Final Plans shall be performed by Landlord pursuant to a change order approved and executed by Landlord and Tenant. All changes to the Final Plans requested by Tenant must be approved by Landlord in advance, which approval shall not be unreasonably withheld, delayed or conditioned. Landlord shall respond to changes to the Final Plans within five (5) Business Days. All increases in the cost of the Initial Tenant Improvements Work resulting from such change orders shall be borne by Tenant, subject to payment as part of the Construction Credit.
(c) For purposes of this Exhibit “M”: (i) “Landlord's Proportionate Payment Share” shall be a fraction, the numerator of which shall be the Construction Credit and the denominator of which shall be the total Approved Budget, and (ii) “Tenant's Proportionate Payment Share” shall be a fraction, of which the total amount of the Approved Budget less the Construction Credit shall be the numerator and the total Approved Budget shall be the denominator. It is the parties’ intention that all partial payments of the Cost of the Initial Tenant Improvements Work made during the performance of the Initial Tenant Improvements shall be made on a “pari passu” basis with Landlord contributing Landlord’s Proportionate Payment Share and Tenant contributing Tenant’s Proportionate Payment Share of each partial payment.
(d) From time to time during the performance of Initial Tenant Improvements, but not more frequently than once per month, the Landlord’s Contractor shall submit a written request for payment (a “Payment Request”) to Landlord and Tenant that contains the following documentation: (1) an Application for Payment (AIA documents G702 and G703) from Landlord’s Contractor identifying percentage of completion by trade; (2) a copy of all invoices relating to that portion of Initial Tenant Improvements described in the Application for Payment and all other invoices for other Costs for which Landlord’s Contractor is requesting payment, and (3) partial lien waivers from all contractors, subcontractors, suppliers and materialmen who performed work, furnished services or provided material in connection with such portion of the Initial Tenant Improvements identified in the Application for Payment (collectively, the “Required Documents”). Upon completion of the Initial Tenant Improvements, the Landlord’s Contractor shall submit a final Payment Request to Landlord together with the Required Documents (including final lien waivers from all contractors, subcontractors, suppliers and materialmen who performed work, furnished services or provided material in connection with the Initial Tenant Improvements) and a copy of the final certificate of occupancy and/or any other permit or approval required in connection with the completion of the Initial Tenant Improvements. Landlord and Tenant shall approve each Payment Request in writing to the Landlord’s Contractor, or notify the Landlord’s Contractor of any reasonable objections to such Payment Request within fifteen (15) Business Days following its receipt of such Payment Request. In the event Landlord or Tenant shall reasonably object to all or a portion of any Payment Request, Landlord and Tenant agree to promptly meet in order to equitably resolve such objections with Landlord’s Contractor. Within fifteen (15) Business Days following Landlord’s and Tenant’s approval of a Payment Request or the resolution by Landlord and Tenant of any objection to such Payment Request, (i) then Tenant shall pay Tenant’s Proportionate Payment Share of such Payment Request to Landlord’s Contractor, and (ii) provided there is no Event of Default then occurring, Landlord shall pay Landlord’s Proportionate Payment Share of such Payment Request to Landlord’s Contractor
| - 80 - |
(3) The Initial Tenant Improvements Work, excluding any Tenant Installations, constitutes all of the improvements to be Substantially Completed by Landlord in order to prepare the Premises for occupancy by Tenant.
C. Tenant Installations
(1) Tenant, at its own cost and expense, shall perform all work related to installation of furniture, moveable furnishings, telephone systems (including, without limitation, voice and data cabling and telecommunications equipment) and office equipment (the “Tenant Installations”), subject to the provisions of Paragraph C(2) below. All Tenant Installations which adversely affect the structure of the Building, require any permit from a governmental authority, involve electrical work or adversely affect the Building systems shall require the prior written consent of Landlord. All Tenant Installations shall be performed in accordance with Section 22 of the Lease and accomplished in a good and workmanlike manner so as not to damage the Premises or the Building or the plumbing, electrical line or other utilities. Notwithstanding anything to the contrary contained herein, Landlord’s Contractor shall coordinate the performance of the Initial Tenant Improvements Work and the Tenant’s performance of the Tenant Installations in accordance with customary and prudent construction practices in order to effectuate the completion of such installations in an orderly and efficient manner, subject to the provisions of Paragraph C(2) below.
(2) In the event that Tenant performs any Tenant Installations pursuant to this Lease, Tenant agrees promptly to notify Landlord in writing of the names of its agents, contractors or subcontractors who are to work in the Premises, and to furnish Landlord with such other information as Landlord may reasonably require. All work done by Tenant, its agents, contractors, subcontractors or employees shall be scheduled and performed so as not to conflict, interfere with, or delay any work undertaken by Landlord in the Building or Landlord's completion of the Initial Tenant Improvements Work. In the event that Tenant, its agents, contractors, subcontractors or employees do not work in harmony with, or interfere with, labor employed by Landlord, its agents, contractors, subcontractors or employees or in the event any work stoppage, jurisdictional labor dispute or other interference with Landlord, its agents, contractors, subcontractors or employees occurs Landlord shall have the right to require Tenant, upon written demand, to remove or cause the removal forthwith all of Tenant's agents, contractors and employees from the Premises and Tenant agrees to comply with such demand immediately. Any of Tenant's Installations shall be installed solely at Tenant's risk. Tenant shall be liable to Landlord in the event Tenant, its agents, contractors, subcontractors or employees damage the Initial Tenant Improvements Work, the Premises or the Building.
D. Tenant Delay
Tenant shall be responsible for any Tenant Delay in connection with the construction and installation of the Initial Tenant Improvements by Landlord’s Contractor, subject to the provisions of Section 1(a) (iii) of the Lease.
| - 81 - |

| - 82 - |

| - 83 - |

| - 84 - |

| - 85 - |
EXHIBIT “N”
PROJECT CAMPUS

| - 86 - |
EXHIBIT “O”
PROHIBITED USES
1. Offices of any division, agency or bureau of the United States or any state or local government or of any foreign government or subdivision thereof.
2. Offices of any health care professionals or for the provision of any health care services or other therapeutic or diagnostic services.
3. Any school, educational, or other training facility (except for in house training of Tenant’s employees).
4. Any restaurant use or retail use (meaning a business whose primary patronage arises from the generalized solicitation of the general public to visit Tenant’s offices in person) including, without limitation, a health spa, gymnasium, fitness center, bank or savings and loan association, or retail facilities of any financial, lending, securities brokerage or investment activity.
5. Any residential use, living quarters or lodging or sleeping use.
6. Any communications uses (such as broadcasting radio and/or television stations).
7. Any “executive suite” type uses where office suites are maintained for individual rental.
8. Any use of the Premises or any portion thereof for any occupancy density which is materially greater than the average occupancy density associated with the occupancy of Tenant.
9. Any church, house of worship or related religious facility.
10. Any use which emits an obnoxious odor, discharge or sound which can be heard, seen or smelled outside the Premises in the Project.
11. Any use that will cause damage to the Premises or the Project, or materially impair the appearance of the exterior of the Premises or other portions of the Project outside of the Premises.
| - 87 - |